data.image.1.alternative}

Planung und Installation Löschwassertechnik (LWT) – für Fachplaner und Architekten

Allgemeines

Die Bevölkerungszahl hat sich während des 20. Jahrhunderts verdreifacht und der Wasserverbrauch ist um das Sechsfache gestiegen. Im Durchschnitt liegt der tägliche Wasserverbrauch pro Kopf in Deutschland bei 125 Litern pro Person. Da weltweit nur 5 % aller Abwässer gereinigt werden, hat die zunehmende Wasserverschmutzung eine Verringerung des Trinkwasserangebots zur Folge. Aus diesem Grund stellt die Reinhaltung des Trinkwassers eine besondere Herausforderung dar, denn Trinkwasser ist nicht nur Lebensmittel sondern auch Löschmittel.

Für eine effiziente Brandbekämpfung ist die Verwendung von Trinkwasser aus dem öffentlichen Wasserversorgungsnetz, aufgrund der Verfügbarkeit und des bereits vorhandenen Trinkwassernetzes, von hoher Bedeutung. Da Löschwasseranlagen nur im Bedarfsfall zum Einsatz kommen, besteht die Gefahr, dass das stagnierende Wasser in den Löschleitungen verkeimt und nicht mehr den hygienischen Anforderungen entspricht.

Bei Planung, Bau und Betrieb von Löschwasseranlagen ist deshalb darauf zu achten, dass die Löschwasseranlage nur mit geeigneten Löschwasserübergabestellen (LWÜ) an das Trinkwassernetz angeschlossen ist, um die Qualität des Trinkwassers nicht zu beeinträchtigen und die Gesundheit des Menschen zu bewahren (DIN 1988, DIN 14462).

Die Tatsache, dass Trinkwasser ein Lebensmittel ist, stellt hohe spezifische Anforderungen an Planung und Ausführung von Löschwassersystemen. Für die Schnittstelle zwischen Lösch- und Trinkwasser vertreibt Minimax Mobile Services eine Technologie, die zuverlässigen Brandschutz mit der Sicherung der Trinkwasserhygiene kombiniert.


Minimax Löschwassertechnik

Übersicht über Normen, Begriffe und Systeme

ASR A 2.2 – Maßnahmen gegen Brände

ASR A 1.3 – Unfallverhütungsvorschrift  Sicherheits- und Gesundheitsschutzkennzeichnung am Arbeitsplatz
 

DVGW – Technische Regeln des DVGW, Wasserversorgung, Rohrnetz/Löschwasser Arbeitsblatt W 405 „Bereitstellung von Löschwasser durch die öffentliche Trinkwasserversorgung”

 

DIN 14210 – künstlich angelegte Löschwasserteiche

DIN 14220 – Löschwasserbrunnen

DIN 14230 – Unterirdische Löschwasserbehälter

DIN 14461 – Feuerlösch-Schlauchanschlusseinrichtungen

  • Teil 1 „Wandhydranten mit formstabilem Schlauch“
  • Teil 2 „Einspeiseeinrichtungen und Entnahmeeinrichtungen für Steigleitungen ‚trocken’
  • Teil 3 „Schlauchanschlussventile PN 16“
  • Teil 4 „Einspeisearmatur PN 16 für Löschwasserleitungen“
  • Teil 5 „Entnahmearmatur PN 16 für Löschwasserleitungen“
  • Teil 6 „Schrankmaße und Einbau von Wandhydranten mit Flachschlauch nach DIN EN 671-2“

DIN 14462 – Löschwassereinrichtungen

  • „Planung, Einbau, Betrieb und Instandhaltung von Wandhydrantenanlagen sowie Anlagen mit Über- und Unterflurhydranten“
  • Hinweise zur Aktualisierung

DIN 14463 – Löschwasseranlagen – Fernbetätigte Füll- und Entleerungsstationen

  • Teil 1 „Für Wandhydrantenanlagen“
  • Teil 3 „Be- und Entlüftungsventile PN 16 für Löschwasserleitungen nass/trocken und trocken“

DIN 14464 – Direktanschlussstationen für Sprinkleranlagen und Löschanlagen mit offenen Düsen Anforderungen und Prüfung

DIN 14811 – Feuerwehrschläuche-Druckschläuche und Einbände für Pumpen und Feuerwehrfahrzeuge

DIN 1986-100 – Entwässerungsanlagen für Gebäude und Grundstücke Bestimmungen in Verbindung mit der DIN EN 752 und DIN EN 12056

DIN 2000 –  Zentrale Trinkwasserversorgung - Leitsätze für Anforderungen an Trinkwasser, Planung, Bau, Betrieb und Instandhaltung der Versorgungsanlagen

DIN 2001 – Trinkwasserversorgung aus Kleinanlagen und nicht ortsfesten Anlagen - Teil 1: Kleinanlagen - Leitsätze für Anforderungen an Trinkwasser, Planung, Bau, Betrieb und Instandhaltung der Anlagen

DIN 4055 – Wasserleitungen, Straßenkappe für Unterflurhydranten; Technische Regel des DVGW

DIN 4066 – Hinweisschilder für die Feuerwehr

DIN 4102 – Brandverhalten von Baustoffen und Bauteilen

 

DIN EN 2 – Brandklassen

DIN EN 3 – Tragbare Feuerlöscher

DIN EN 671 – Ortsfeste Löschanlagen – Wandhydranten

  • Teil 1 „Schlauchhaspeln mit formstabilem Schlauch“
  • Teil 2 „Wandhydranten mit Flachschlauch“
  • Teil 3 „Instandhaltung von Schlauchhaspeln mit formstabilem Schlauch und Wandhydranten mit Flachschlauch“

DIN EN 694 – Feuerlöschschläuche – Formstabile Schläuche für Wandhydranten

DIN EN 806 – Technische Regeln für Trinkwasser-Installationen

DIN EN 14339 – Unterflurhydranten PN 16

DIN EN 14384 – Überflurhydranten PN 16

DIN EN 14540 – Feuerlöschschläuche – Flachschläuche für Wandhydranten

DIN EN 15182 – Strahlrohre für die Brandbekämpfung Teil 1 „allgemeine Anforderungen“

  • Teil 2 „Hohlstrahlrohre PN 16“
  • Teil 3 „Strahlrohre mit Vollstrahl und/oder einem unveränderlichen Sprühstrahlwinkel PN 16“

DIN EN 1717 – Schutz des Trinkwassers vor Verunreinigungen in Trinkwasser-Installationen und   allgemeine Anforderungen an Sicherungseinrichtungen zur Verhütung von   Trinkwasserverunreinigungen durch  Rückfließen

DIN EN 1866Fahrbare Feuerlöscher

DIN VDE 0132 – Brandbekämpfung und technische Hilfeleistung im Bereich elektrischer Anlagen

 

TrinkwV – Trinkwasserverordnung; Verordnung über die Qualität von Wasser für den menschlichen Gebrauch


Mechanisch und hydraulisch


Fließgeschwindigkeit = v [ m/s]

Durchfluss, Volumenstrom = Q [ l/s, m3/h ]
Menge (Wasser), die pro Zeiteinheit fließt

Mindest-Versorgungsdruck = SPLN = pv [ bar = 0,1 Mpa ]
ist der Druck in der Versorgungsleitung während einer Zeit hohen Verbrauchs, Angaben hierzu erfolgen durch das Wasserversorgungsunternehmen

Ruhedruck = pr [ bar = 0,1 Mpa ]
ist der statische Druck an einer Messstelle in der Trinkwasseranschlussleitung, wenn kein Wasser fließt

Fließdruck = pf [ bar = 0,1 Mpa ]
ist der dynamische Druck an einer Messstelle in der Trinkwasseranschlussleitung, wenn das Wasser fließt

Mindestfließdruck = pmin fl [ bar = 0,1Mpa ]
ist der erforderliche Fließdruck zur sicheren Funktion der Anlage

Förderdruck [ bar = 0,1 Mpa ]
ist der durch eine Pumpe aufgebauter Druck, wird auch in Förderhöhe [ m ] angegeben

Druckdifferenz, Druckverlust [ bar = 0,1Mpa ]
Druckunterschied zwischen zwei Punkten in der Rohrleitung, hervorgerufen durch Rohrreibung und Einzelwiderstände

Druckverlust aus geodätischem Höhenunterschied [ bar = 0,1Mpa ]

Rohrleitungslänge = l [ m ]

Innendurchmesser des Rohres = di  [mm]

Außendurchmesser des Rohres = da  [mm]

Druckzonen
sind Bereiche unterschiedlicher Drücke, getrennt durch separate Rohrleitungen mit eigenen  Pumpen oder einer Versorgungspumpe mit unterschiedlichen Drücken durch Druckreduzierventile

Widerstandsbeiwert = kv [ Q bei 1 bar Druckverlust ]

Druck = p [ bar = 0,1Mpa ]
ist die Kraft pro Flächeneinheit aller Berührungsflächen der Flüssigkeit in einem geschlossenen System kp/cm²

 

Elektrisch


elektrische Arbeit = W [ kW h ]

elektrische Leistung = P [ kW ]

elektrische Stromstärke = I [ A ]

elektrische Spannung = U [ V ]

elektrischer Widerstand = R [ W ]  


Abnahme

  • ist eine Überprüfung der Anlagen auf Einhaltung der von dem Brandschutzkonzept geforderten Aufgabe und Einhaltung der einschlägigen Normen, Verordnungen, BG-Richtlinien, VdS,  DVGW und Gesetzen. Unterschiedlich nach Bundesland kann die Abnahme durch einen Sachkundigen oder Sachverständigen erfolgen.

abwehrender Brandschutz

  • Maßnahmen zur Bekämpfung von Gefahren für Leben, Gesundheit und Sachen, die durch Brände entstehen

befähigte Person (Sachkundiger)

  • Person, die über die erforderliche Ausbildung und praktische Erfahrung sowie die erforderlichen Werkzeuge, Prüfeinrichtungen und Informationen verfügt, um die Abnahmeprüfung und Instandhaltung entsprechend dem aktuellen Stand der Technik sowie den von den Herstellern empfohlenen Verfahren zuverlässig durchführen und mögliche Gefahren erkennen kann

Brandschutzkonzept

  • Ein Brandschutzkonzept enthält Angaben über den Aufbau und die Anforderungen an die Feuerlösch- und Brandschutzanlagen unter Berücksichtigung des vorbeugenden und des abwehrenden Brandschutzes und der kundenspezifischen Anforderungen.

Direktanschlussstationen

  • Einrichtungen nach DIN 14464 ausschließlich für den Anschluss von Sprinkler- und Sprühwasserlöschanlagen

Druckerhöhungsanlage (DEA)

  • Anlage, bestehend aus einem Steuergerät, einer oder mehreren Pumpen sowie entsprechenden Stellgliedern zur Erhöhung des Wasserdruckes in der Löschwasseranlage.

Einspeisearmatur PN 16

  • Einspeisearmaturen PN 16 für Löschwasserleitungen „trocken” gemäß DIN 14 461-4 sind wasserführende Armaturen mit jeweils 2 B-Eingängen zum Anschluss an die Löschwasserleitungen „trocken”. Sie dienen der Feuerwehr zum Anschluss von Druckschläuchen B DIN 14 811.
     
  • Die Einspeisearmaturen müssen in die Einspeiseeinrichtungen gemäß DIN 14 462 eingebaut sein. Bauweisen: Zu unterscheiden sind hängender Einbau bei nach oben führenden Löschwasserleitungen „trocken” und stehender Einbau bei nach unten führenden Löschwasserleitungen.

Einspeiseeinrichtungen

  • Einspeiseeinrichtungen gemäß DIN 14 461-2 für Löschwasserleitungen „trocken” dienen der Feuerwehr als Feuerlösch-Schlauchanschlusseinrichtungen bei Löschwasserleitungen „trocken” gemäß DIN 14 462. In den Einspeiseeinrichtungen befinden sich die Einspeisearmaturen PN 16 gemäß DIN 14 461-4.
     
  • Bauweisen: Die Einspeiseeinrichtungen können wahlweise als Einbauschrank (Form E) oder als Wandschrank (Form S) geliefert werden. Die Türen müssen mit Verschlusseinrichtungen gemäß DIN 14 925 (Feuerwehrschloss) versehen sein.

Einweisung

  • ist die Einweisung des vom Bauherrn benannten zuständigen Verantwortlichen in die Funktion und den Gebrauch der Anlage durch einen Sachkundigen

Entnahmeeinrichtungen

  • Entnahmeeinrichtungen für Löschwasserleitungen „trocken” gemäß DIN 14 461-2 dienen der Feuerwehr als Feuerlösch-Schlauchanschlusseinrichtungen bei Löschwasserleitungen „trocken” gemäß DIN 14 462.
     
  • In den Entnahmeeinrichtungen befinden sich die Schlauchanschluss-Armaturen PN 16 gemäß
    DIN 14 461-5.
     
  • Bauweisen: Die Entnahmeeinrichtungen können als Einbauschrank (Form E) oder als Wandschrank (Form S) geliefert werden.

Fachfirma

  • Einrichtung oder Unternehmen, deren Mitarbeiter über die erforderliche Ausbildung und praktische Erfahrung sowie die erforderlichen Werkzeuge, Prüfeinrichtungen und Informationen verfügen, um die Installation entsprechend dem aktuellen Stand der Technik sowie den von den Bauteil-Herstellern empfohlenen Verfahren zuverlässig durchzuführen und mögliche Gefahren zu erkennen

Feuerlösch-Schlauchanschlusseinrichtung

  • Bestandteil ortsfester Löschanlagen zur Löschwassereinspeisung oder Löschwasserentnahme in das bzw. aus dem Leitungssystem

Füll- und Entleerungsstation

  • Bauteil mit fernbetätigten Armaturen, welches Trinkwasser-Leitungsanlagen von Löschwasserleitungen „nass/trocken“ trennt und die Löschwasserleitungen „nass/trocken“ im Bedarfsfall mit Wasser füllt bzw. diese nach Gebrauch selbsttätig wieder entleert

Grundschutz 

  • Brandschutz für Wohngebiete, Gewerbegebiete, Mischgebiete und Industriegebiete ohne erhöhtes Sach- und Personenrisiko.

Inbetriebnahme/Übergabe

  • ist die Übergabe der auf Funktion geprüften Anlagenteile mit Abnahmebescheinigungen an den Auftraggeber/Bauherrn/Nutzer durch einen Sachkundigen

Kontrollbuch

  • Dokumentation der Gesamtanlage mit fortlaufender Protokollierung der Betriebsereignisse und Instandhaltungen

Löschanlage mit offenen Düsen

  • Selbsttätige Feuerlöschanlage mit festverlegten Leitungen, an die in definierten Abständen offene Düsen eingebracht sind. Das Rohrnetz hinter der Füll- und Entleerungsstation oder dem Sprühwasserventil ist im Betriebszustand nicht mit Wasser gefüllt. Beim Auslösen der Anlage strömt sofort der Spitzendurchfluss (entspricht Auslegungsvolumenstrom nach DIN 14494 bzw. DIN 14495, CEN TS 14816 oder VdS 2109) von der Wasserversorgung in das Düsenrohrnetz.
  • Sie umfasst:
    • Sprühwasser-Löschanlagen nach DIN 14494/CEN TS 14816
    • Behälter-Berieselungsanlagen nach DIN 14495

Löschwasser 

  • Löschwasser ist „kein Trinkwasser“ ab der Löschwasserübergabestelle (LWÜ). 

Löschwasseranlage für Wandhydranten:

Löschwasseranlage „nass“

  • vom Trinkwassernetz getrennte Löschwasserleitungen „nass“ mit angeschlossenen Wandhydranten oder Überflur- bzw. Unterflurhydranten, die ständig unter Druck stehen und somit jederzeit einsatzbereit sind

Löschwasseranlage „nass/trocken“

  • Leitungssystem mit angeschlossenen Feuerlösch-Schlauchanschlusseinrichtungen bzw. Hydranten, die erst im Brandfall fernbetätigt über eine Füll- und Entleerungsstation unter Druck gesetzt wird und im Normalfall leer ist.

Löschwasseranlage „trocken“

  • Löschwasserleitungen „trocken“ mit den entsprechenden Entnahmestellen, in die das Löschwasser erst im Bedarfsfall über eine Löschwasser-Einspeiseeinrichtung durch die Feuerwehr eingespeist wird

Löschwasserbrunnen

  • sind künstlich angelegte Entnahmestellen für Löschwasser aus dem Grundwasser. Das Löschwasser kann durch Saugbetrieb (S) oder mittels einer Tiefpumpe (T) entnommen werden.
  • Einteilung der Ergiebigkeit von Löschwasserbrunnen:
     

    ERGIEBIGKEIT  KENNZAHL  l/min
    klein   400  400 bis 800
    mittel   800  über 800 bis 1.600
    groß1.600  über 1.600


    Die Kennzahlmengen müssen über 3 Std. bereitgestellt werden können. 

    Bezeichnung eines kleinen Löschwasserbrunnens (Kennzahl 400) für Saugbetrieb: 
    Brunnen DIN 14220:2003 — 400 S

    Bezeichnung eines mittleren Löschwasserbrunnens (Kennzahl 800) mit Tiefpumpe:
    Brunnen DIN 14220:2003 — 800 T

 Löschwasserleitung

  • fest verlegte Rohrleitung mit absperrbaren Feuerlösch-Schlauchanschlusseinrichtungen bzw. Hydranten, die dazu dient, Wasser zu Feuerlöschzwecken bereitzustellen

Löschwasserleitung „nass“

  • Nichttrinkwasserleitung, die mit Betriebswasser gespeist wird oder über einen freien Auslauf AA oder AB nach DIN EN 1717 als Löschwasserübergabestelle mittelbar aus dem Trinkwassernetz versorgt wird und ständig unter Druck steht

Löschwasserleitung „nass/trocken“

  • Verbrauchsleitung, die im Bedarfsfall durch Fernbetätigung von Armaturen mit Wasser aus dem Trinkwassernetz oder auch mit Nichttrinkwasser gespeist wird

Löschwasserleitung „trocken“

  • Nichttrinkwasserleitung, in die das Löschwasser erst im Brandfall von der Feuerwehr eingespeist wird und die keine unmittelbare Verbindung zur Trinkwasserinstallation hat

Löschwasser-Sauganschlüsse

  • Löschwasser-Sauganschlüsse gemäß DIN 14 244 sind nach DIN 14 011-2 fest eingebaute Anschlussvorrichtungen für Saugschläuche.

Löschwasserteiche 

  • sind künstlich angelegte offene Löschwasser-Vorratsräume mit einer Löschwasser-Entnahmestelle. Löschwasserteiche können auch für andere Zwecke genutzt werden, wenn die Belange der Feuerwehr nicht beeinträchtigt werden. Bezeichnung eines Löschwasserteiches (LWT): Teich DIN 14210:2003 - LWT

Löschwasserübergabestelle (LWÜ) 

  • Schnittstelle zwischen Trinkwasserinstallation und Feuerlösch- und Brandschutzanlage. Anschlussarten: Beim Anschluss von Trinkwasser und Feuerlöschanlagen wird zwischen mittelbarem Anschluss und  unmittelbarem Anschluss unterschieden. 

mittelbarer Anschluss (indirekter Anschluss) 

  • Absicherung über einen freien Auslauf AA oder AB nach DIN EN 1717

Objektschutz

  • Über den Grundschutz hinausgehender, objektbezogener Brandschutz

Schlauchanschluss-Armaturen PN 16

  • Schlauchanschluss-Armaturen PN 16 für Löschwasserleitungen „trocken” nach DIN 14 461-5 sind wasserführende Armaturen mit einem C-Abgang und einer Verschraubung und dienen zum Anschluss von Schlauchleitungen mit Strahlrohren für Feuerlöschzwecke. Schlauchanschlussarmaturen PN 16 müssen in Schränken gemäß DIN 14 461-2 eingebaut sein. Die Betätigungseinrichtungen mit den Betriebsstellungen „Auf” und „Zu” müssen DIN 14 925 entsprechen.

Schlauchanschluss-Ventile PN 16

  • Schlauchanschluss-Ventile PN 16 gemäß DIN 14 461-3 dienen zum Anschluss von Schlauchleitungen mit Strahlrohren für Feuerlöschzwecke. Schlauchanschluss-Ventile mit Grenztastern dienen zum Betätigen der Füll- und Entleerungsstationen und von Druckerhöhungsanlagen.

Sprinkleranlage

  • Selbsttätige Feuerlöschanlage mit festverlegten Rohrleitungen, an die in definierten Abständen geschlossene Düsen (Sprinkler) angebracht sind. Beim Auslösen der Anlage tritt nur Wasser aus den Sprinklern aus, deren Verschlüsse durch die eingestellte Auslösetemperatur freigeworden sind (selektiv wirkende Löschanlage; siehe auch DIN 14489, VDS CE 4001 und E DIN EN 12845). Es wird unterschieden wischen Nass- und Trockensprinkleranlagen sowie vorgesteuerten Trockenanlagen.
     
    • Nass-Sprinkleranlage

      Anlage, bei der das Rohrnetz hinter der Nassalarmventilstation nach DIN EN 12259-2 ständig mit Wasser gefüllt ist und beim Auslösen eines Sprinklers tritt aus diesem verzögerungsfrei Wasser aus.
       
    • Trocken-Sprinkleranlage

      Anlage, bei der das Rohrnetz hinter der Trockenalarmventilstation nach DIN EN 12259-3 im Bereitschaftszustand nicht mit Wasser, sondern mit Druckluft gefüllt ist und durch das Auslösen eines Sprinklers mit Wasser befüllt wird.
       
    • Vorgesteuerte Trocken-Sprinkleranlage

      Sprinkleranlage, bei dem das Rohrnetz hinter einem vorgesteuerten Trockenalarmventil nach VdS CEA 4001 nicht mit Wasser, sondern mit Druckluft gefüllt ist. Die Station wird durch eine Brandmeldeanlage oder durch das Auslösen eines Sprinklers mit Wasser befüllt.
       
    • Löschwasserübergabestellen für Sprinkleranlagen aus dem Trinkwassernetz
       
      • Mittelbar nach DIN EN 1717, TYP AA, AB
        freie Ausläufe über Schwimmerventile
         
      • Unmittelbar nach DIN 14464
        ausschließlich für den Anschluss von Sprinkler- und Sprühwasserlöschanlagen mit einem Volumenstrom bis 50 m³/h

Stagnation des Trinkwassers

  • eine ansteigende Konzentration von gelösten oder suspendierten Stoffen oder ein Bakterienwachstum – führt zu einer Beeinträchtigung der Trinkwasserqualität.

Trinkwasser

  • ist ein Wasser mit den Eigenschaften entsprechend der TrinkwV 2001. In der Trinkwasserverordnung ist geregelt, welche Grenzwerte im Trinkwasser einzuhalten sind und welche weiteren Mindeststandards zur Erfüllung der Qualitätsanforderungen beachtet werden müssen.

Trinkwasser-Installation

  • Installation, die Trinkwasser für den menschlichen Gebrauch in den Güteanforderungen der Trinkwasserverordnung (TrinkwV) über den gesamten Leitungsweg bis zur Entnahmestelle oder zur Sicherungsarmatur führt

Trinkwasser-Installation mit Wandhydranten

  • sind Wandhydranten vom Typ S nach DIN 14461-1 mit einem Schlauchanschlussventil 1" eigensicher  (integrierte Sicherungskombination mit Rückflussverhinderer und Rohrbelüfter), die unmittelbar in die Trink-wasserinstallation eingebunden werden.

Über- und Unterflurhydrantenanlage auf Grundstücken

  • Wasserverteilungsanlage auf einem Grundstück, die aus erdverlegten Rohrleitungen mit daran angeschlossenen Überflurhydranten oder Unterflurhydranten besteht.

Überflurhydranten

  • Überflurhydranten gemäß DIN 3222 sind nach DIN 14 011-2 oberirdische Hydranten, aus denen ohne Zuhilfenahme weiterer Armaturen Wasser entnommen werden kann.

Unterflurhydranten

  • Unterflurhydranten gemäß DIN 3221 sind nach DIN 14 011-2 unterirdische Hydranten, aus denen mittels eines Standrohrs Wasser entnommen werden kann.

Unterirdische Tanks

  • Ein unterirdischer Löschwasserbehälter ist ein künstlich angelegter überdeckter Vorratsraum mit einer Löschwasser-Entnahmestelle. Bezeichnung eines unterirdischen Löschwasserbehälters (ULB): Behälter DIN 14230-ULB

unmittelbarer Anschluss (indirekter Anschluss)

  • nicht über einen freien Auslauf AA oder AB nach DIN EN 1717 abgesichert

vorbeugender Brandschutz

  • Maßnahmen zur Verhinderung eines Brandausbruchs und einer Brandausbreitung sowie zur Sicherung der Rettungswege und Schaffung von Voraussetzungen für einen wirkungsvollen abwehrenden Brandschutz

Vorlagebehälter

  • Behälter zur Herstellung einer mittelbaren Verbindung zwischen Trinkwasser und Nichttrinkwassernetzen unter Verwendung eines freien Auslaufes AA oder AB nach DIN EN 1717, AD, der zur Bevorratung von Löschwasser verwendet werden kann.

Wandhydrant

  • Löschgerät, im Wesentlichen bestehend aus einem Schutzschrank oder einer Abdeckung, einer Schlauchhaltevorrichtung, einem handbetätigten Absperrventil, einem formstabilen Schlauch oder Flachschlauch mit Kupplungen und absperrbarem Strahlrohr
     
    • Wandhydrant TYP F

      Für die Nutzung als Selbsthilfe und als Nutzung durch die Feuerwehr vorgesehener Wandhydrant, der nicht in einer Trinkwasserinstallation eingebunden ist. Feuerlösch-Schlauchanschlusseinrichtungen (Wandhydranten) gemäß DIN 14 461-1 und DIN EN 671 sind absperrbare Anschlüsse an Löschwasserleitungen „nass” und „nass/trocken” an festverlegten – entweder ständig unter Druck stehenden oder im Bedarfsfall selbsttätig einspeisenden – Löschwasserleitungen. Sie sind mit betriebsbereit angekuppelten, mit Strahlrohr versehenen Schlauchleitungen ausgerüstet
       
      • DIN 14 461-1 und DIN EN 671-1

        Feuerlösch-Schlauchanschlusseinrichtungen gemäß DIN 14 461-1 und DIN EN 671-1 sind mit 30 m langem formstabilen Schlauch 1“ gemäß E DIN EN 694 und Strahlrohr gemäß DIN EN 671-1 ausgerüstet. Bei Löscheinsätzen werden die Schläuche bei zuvor geöffneten Schlauchanschlussventilen nur bis zur jeweils erforderlichen Länge abgerollt.
         
      • DIN 14 461-6 und DIN EN 671-2 

        Feuerlösch-Schlauchanschlusseinrichtungen gemäß DIN 14 461-6 und DIN EN 671-2 sind mit 20 m langem Flachschlauch gemäß DIN 14 811 C 42 und Hohlstrahlrohre gemäß DIN 14 461-4 ausgerüstet. Bei Löscheinsätzen müssen die Schläuche vor Öffnen der Schlauchanschlussventile vollständig abgerollt und knickfrei ausgelegt werden. Bauweisen: Die Feuerlösch-Schlauchanschlusseinrichtungen (Wandhydranten) können als Einbauschrank (Form E) oder als Wandschrank (Form S) geliefert werden.
         
    • Wandhydrant TYP S

      Ausschließlich zur Selbsthilfe vorgesehener Wandhydrant mit 1" Schlauchanschluss-Ventil und integrierter Sicherungskombination, der in eine Trinkwasserinstallation eingebunden ist. Der Schlauch kann ¾" ausgeführt werden. Faltschläuche kommen bei reinen Selbsthilfeeinrichtungen nicht zum Einsatz.Bauweise: siehe Typ F 

Wandhydrantenanlage

  • nichtselbstständige, ortsfeste Löschanlage mit angeschlossenen Feuerlösch-Schlauchanschlusseinrichtungen, die der Selbsthilfe im Brandfall dienen und je nach Ausführung auch von der Feuerwehr genutzt werden können

Wasserversorgungsunternehmen (WVU)

  • Unternehmen, das öffentliche Wasserversorgung betreibt, unabhängig von Unternehmensform und Trägerschaft

 


Füll- und Entleerungsstation

PLANUNG & INSTALLATION

Löschwasser­einrichtungen von Wand­hydranten­anlagen, Unterflur- und Überflur­hydranten

Checkliste für direkt an die Trinkwasserleitung angeschlossene Löschwasseranlagen:

  1. Beprobung der Trinkwasseranlage, ob eine Verkeimung des Trinkwassers vorliegt.
     
  2. Trennung der „Verbraucherleitung“ von der Löschleitung durch einen neuen Löschstrang inkl. Neuversorgung 
     
    • Das Wasser im neuen Löschstrang darf nicht für den menschlichen Verzehr verwendet werden (z. B. Teeküche oder Trinkautomaten)
    • Beachtung der Anforderungen laut Brandschutzkonzept bzw. Baugenehmigung
    • Feststellung über die Verfügbarkeit eines Brandschutzbeauftragten
    • Rücksprache mit örtlicher Feuerwehr bzgl. Besonderheiten
    • Klärung über Nutzungsänderungen seit der Baugenehmigung und ggf. Überprüfung der Auswirkungen auf den Brandschutz
       
  3. Trennung des Hydranten-Steigestrangs mit „Spülverbraucher“ von der restlichen Trinkwasserversorgungsanlage und Anschluss an eine Löschwasserübergabestelle 
     
    • Klärung, ob und wo eine Löschwasserübergabestelle in den Baukörper integriert werden kann
    • Elektronische Voraussetzungen: Versorgung bei Stromausfall sowie Weiterleitung von Störmeldungen
    • Ableitungsmöglichkeit des Wassers im Falle einer Störung oder defekten Anlage ohne Schäden durch:
      • direkten SW-Kanalanschluss
      • Bodenablauf mindestens in DN 100
      • Havarieleitung
      • Hebeanlage

(siehe Abb.)


Anforderungen aus dem Brandschutzkonzept

Bei der Planung einer Feuerlöschanlage sind die Angaben aus dem Brandschutzkonzept zu beachten. Diese basieren auf den Forderungen aus den für das Objekt geltenden Gesetzen, Richtlinien und Verordnungen. Die anerkannten Regeln der Technik sind anzuwenden. Besteht kein Brandschutzkonzept, sind die Anforderungen der Feuerlöschanlage bei den Behörden (Bauaufsicht, Feuerwehr oder Gutachter) einzuholen. Das Brandschutzkonzept wird Bestandteil der Baugenehmigung, dementsprechend können sich Änderungen aus dem Brandschutzkonzept auf die Baugenehmigung auswirken.

 

Wasserversorgung

Bei der Wasserversorgung von Löschwasseranlagen ist die Planung der Wassermenge laut Brandschutzkonzept wichtig.

  • Beispiel

    3 x 100 l/min entspricht 18 m³/h oder
    3 x 200 l/min entspricht 36 m³/h

     

Die Wasserversorger sind nicht dazu verpflichtet Löschwasser zu liefern. Aus diesem Grund müssen immer größere Löschwassermengen bevorratet werden.

  • Beispiel

    Es wird eine Wandhydrantenanlage mit einer Gleichzeitigkeit von 3 Hydranten bei einer Wassermenge von 100 l/min (entspricht 18 m³/h) über einen Zeitraum von 2 Stunden geplant. Das bedeutet im ungünstigsten Fall, dass 36 m³ bevorratet werden müssen, wenn der Trinkwasserversorger kein Löschwasser bereitstellen kann. Sollte der Wasserversorger Löschwasser bereitstellen können, kann diese Wassermenge auf die Bevorratung angerechnet werden.

Im günstigsten Fall kann der Wasserversorger die komplette Löschwassermenge liefern. Deshalb muss bei der Planung einer solchen Anlage auf die Größe des installierten Wasserzählers geachtet werden.

  • Beispiel

    Bei einer 18 m³/h Wandhydrantenanlage muss mindestens ein Wasserzähler Qn 10 m³/h (Q3 = 16) installiert sein. Dieser hat einen Nennvolumenstrom von 10 m³/h und einen Spitzenvolumenstrom von 20 m³/h, welcher für diese Art von Anlage ausreichend ist. Bei der Auslegung einer Wandhydrantenanlage muss der Trinkwasserbedarf des Gebäudes nicht berücksichtigt werden, da davon ausgegangen werden kann, dass im Brandfall kein Trinkwasser mehr aus der Installation entnommen wird.

     

Löschwasseranlage „nass-trocken” mit Wandhydranten Typ F

Die Füll- und Entleerungsstation nach DIN 14463-1 wird über Grenztaster an den Wandhydranten (Typ F) ausgelöst und anschließend strömt das Löschwasser in die trockene Steigleitung. Ein Rohrbelüfter und -entlüfter ist nach Bedarf einzuplanen. Eine hinreichende Wasserversorgung muss gewährleistet sein, durch die das Löschwasser innerhalb von 60 Sec. am entferntesten Wandhydranten bereitsteht. Die Rohrleitung ist so zu verlegen, dass sie sich zur Anlage hin entleeren kann.

Sollte dieses nicht möglich sein, sind zusätzliche Entleerungspunkte zu berücksichtigen. Wird für die Füllphase nicht genügend Wasser vom Wasserversorger zur Verfügung gestellt, so ist diese Menge in einem Vorlagebehälter bereitzustellen.

 

Feuerlösch- und Brandschutzanlagen mit offenen Düsen

Bei diesem Anlagentyp kann der freie Auslauf, die Füll- und Entleerungsstation nach DIN 14463-2 und die Direktanschlussstation nach DIN 14464 zum Einsatz kommen. Das Rohrnetz ist im Ruhezustand leer und wird erst nach der Auslösung geflutet. Eine 2-Linien-Abhängigkeit ist zur Auslösung der Anlage gefordert.

Eingesetzt werden diese Anlagen beispielsweise zur Berieselung von Behältern. Die Normen DIN 14494, DIN 14495, DIN CENT/TS 14816 und VdS 2109 finden Anwendung. Der benötigte Spitzenvolumenstrom, welcher für die Flutungsphase benötigt wird, ist zu errechnen und durch das Wasserversorgungsunternehmen sicherzustellen.

 

Anlagen mit Unter- und Überflurhydranten

Unter- und Überflurhydranten dienen der Feuerwehr zur Brandbekämpfung im Brandfall. Der freie Auslauf Typ AA, AB nach DIN EN 1717 oder die Füll- und Entleerungsstation nach DIN 14463-1 dürfen bei Unter- und Überflurhydranten als LWÜ eingesetzt werden. Bei der Füll- und Entleerungsstation ist für die Füllphase ein Spitzenvolumenstrom sicherzustellen.

Die bereitzustellende Löschwassermenge wird in dem DVGW-Arbeitsblatt W 405 geregelt und beträgt je nach Objekt 48 m3/h, 96 m3/h oder 192 m3/h. Sollte der Trinkwasserbedarf höher als der Löschwasserbedarf ausfallen, können die Hydranten unmittelbar angeschlossen werden. Diese Situation ist jedoch selten gegeben, so dass in der Regel der Einsatz einer LWÜ erforderlich ist.

Die Unter- und Überflurhydranten sind nach der DIN EN 14339 bzw. DIN 14384 auszulegen. Daraus ergibt sich, dass der Anschluss einer Feuerlöschanlage in der Regel mittelbar auszuführen ist. Ein unmittelbarer Anschluss ist nur bei Hydrantenanlagen zulässig.

 

Selbsttätige Löschhilfeanlage

Eine selbsttätige Löschhilfeanlage wirkt als Feuerlöschanlage mit eingebrachten Düsen. Wird die Auslösetemperatur des Verschlusses erreicht und die Sprinkler geöffnet, kann Löschwasser austreten. Es werden drei Arten von Sprinkleranlagen unterschieden.

Bei einer Nass-Sprinkleranlage ist das Rohrnetz hinter dem Nassalarmventil ständig mit Löschwasser gefüllt, das nach der Auslösung eines Sprinklers ausströmen kann. Eine Trocken-Sprinkleranlage hat ein mit Druckluft gefülltes Rohrnetz, welches erst nach Auslösung eines Sprinklers mit Wasser befüllt wird. Diese Anlage kommt in frostgefährdeten Bereichen zum Einsatz (z. B. Freiflächen, Kühlhäuser). Das Rohrnetz einer vorgesteuerten Trocken-Sprinkleranlage ist ebenfalls mit Druckluft gefüllt.


Bei bestehenden Wandhydrantenanlagen vom Typ F, die in die Trinkwasserinstallation integriert sind und damit eine direkte Verbindung zum Trinkwasser haben, muss das Wasser die Trinkwasserqualität nach der gültigen Trinkwasserverordnung besitzen. Häufig ist das jedoch nicht der Fall und eine Sanierung ist dringend erforderlich. Des Weiteren können Auflagen nach einer Sachverständigenabnahme oder Forderungen des Wasserversorgers zu einer Sanierung führen.

Für die Umsetzung einer Sanierung ist eine Planung erforderlich, welche die Parameter des Brandschutzgutachtens und der Baugenehmigung einhält. Hilfreich sind Rohrleitungspläne und Zeichnungen, die jedoch häufig nicht mehr vorhanden sind. Somit muss eine Isometrie gezeichnet werden, um eine Berechnung zu erstellen. Anhand dieser Berechnung kann die geeignete Löschwasserübergabestelle (LWÜ) ausgewählt werden. Anstehende Drücke und Wassermengen sind bei dem Wasserversorger zu erfragen.

Die Beschaffenheit des Rohrleitungsnetzes ist beispielsweise durch das Befahren mit einer Rohrkamera oder durch das Heraustrennen eines Rohrstückes zu kontrollieren. Erst nachdem die vorher genannten Daten bekannt sind, kann mit der Planung begonnen werden. Diese basiert z. B. auf der DIN 14462, DIN 1988-600 und der Trinkwasserverordnung.


In Gebäuden können die Löschwasserleitungen „trocken“ von der Feuerwehr genutzt werden, wodurch in einem Brandfall die zeitraubende Verlegung von Schläuchen entfällt. Die Einkupplung ist mit Hilfe einer Einspeisearmatur nach DIN 14461 Teil 4 möglich. Die Montagehöhe der B-Kupplungen beträgt 800 (± 200) mm über der Geländeoberfläche. Die Montagehöhe der Schlauchanschlussarmatur zur Entnahme nach DIN 14461 Teil 5 beträgt 1200 (± 400) mm über der Oberkante des fertigen Fußbodens. Um ein reibungsloses Befüllen und Entleeren der Rohrleitungen zu ermöglichen, werden an den obersten Punkten des Rohrleitungssystems Belüfter und Entlüfter nach DIN 14463-3 eingesetzt. Die Entlüftungsmenge beträgt mind. 2000 l/min. Kommt es zu Stichstrecken über 2 m, sind entsprechend der Entlüftungsmenge weitere Belüfter und Entlüfter zu installieren.

Über eine Einspeiseeinrichtung kann die Löschwasserleitung „trocken“ entleert werden. Ist dies nicht möglich, wird die Löschwasserleitung über eine hydraulische Entleerungseinheit in DN 15 ausgeführt. Befindet sich die plombierbare Entleerungseinheit in einem Gebäude, ist eine ausreichende Entwässerungsmöglichkeit nach DIN 1986-100, DIN EN 12056 und DIN 14463 in unmittelbarer Nähe bereitzustellen.

In einem Gebäude mit mehreren Löschwasserleitungen „trocken“ muss für jede dieser Leitungen eine separate Einspeisung vorhanden sein. In jedem Geschoss ist mindestens eine Schlauchanschlusseinrichtung vorzusehen.

Löschwasserleitungen „trocken“ sind in DN 80 zu dimensionieren. Beim Einsatz geringerer Nennweiten und/oder bei Längen größer/gleich 100 m ist die ausreichende Dimensionierung rechnerisch nachzuweisen. Dabei ist sicherzustellen, dass der Wasserdurchfluss an 3 Entnahmestellen mit jeweils 200 l/min die Druckdifferenz zwischen Löschwassereinspeisung und ungünstigster Entnahmestelle maximal 0,1 MPa + geodätischer Steighöhe beträgt. Ab einer geodätischen Höhe von mehr als 30 m über der Einspeisung ist eine Druckerhöhungsanlage erforderlich, die in das Brandschutzkonzept aufzunehmen ist.

Die Rohrleitungen sind nach DIN 14462 Tabelle 1 auszuwählen und in PN 16 auszuführen. Sollen Press-, Klemm- und Steckverbindungen zum Einsatz kommen, müssen diese geeignet und von einer Prüfstelle geprüft worden sein. Ein besonderes Augenmerk ist auch auf die Befestigungsabstände und Befestigungen zu legen, da beim Befüllen und Entleeren außergewöhnliche Kräfte auf die Rohrleitungen wirken. Hierzu sollte eine Auskunft vom Hersteller eingeholt werden.

Die Einspeisung muss mit einem Schild „Löschwassereinspeisung“ und die Entnahmestelle mit einem Schild „Löschwasserentnahme für die Feuerwehr“ nach DIN 4066 versehen werden. Jede zusätzliche Entleerungsstelle bekommt ein Schild „Entleerung Löschwasserleitung trocken“ nach DIN 4066.

Nach Fertigstellung bzw. nach einer wesentlichen Änderung der Anlage ist eine Inbetriebnahme und eine Abnahmeprüfung durch einen Sachkundigen durchzuführen. Diese Anforderung ist in den Prüfverordnungen nach Landesbaurecht geregelt.

Zur Inbetriebnahme bzw. Abnahmeprüfung sind folgende Unterlagen vorzulegen:

  • Bauauflagen/Brandschutzkonzept
  • Planungsgrundlagen nach der Norm DIN 14462
  • Kontrollbuch
  • Spül- und Druckprotokolle


Die Prüfung der Anlage erfolgt nach Tabelle 3 der DIN 14462.
 

 


Wandhydranten können mit Flachschläuchen und formstabilen Schläuchen ausgerüstet werden. Für die Selbsthilfe sollten nur Wandhydranten mit formstabilen Schläuchen eingesetzt werden. Eine Kurzbedienungsanleitung muss in jedem Wandhydrant angebracht sein.

Wandhydranten sind so an- bzw. einzubauen, dass sich das Schlauchanschlussventil in einer Höhe von 1400 (± 200) mm über der Oberkante des fertigen Fußbodens befindet. Werden Wandhydranten-Kombinationsschränke eingebaut, ist ggf. auf weitere Montagehöhen zu achten (z. B. für Handfeuermelder).

Die Wandhydranten sind in die zwei Typen S und F untergliedert. Die Handhabung beider Typen mit formstabilem Schlauch ist identisch, sie unterscheiden sich jedoch in der Abgabe der Löschwassermenge und der Art des Anschlusses an die Wasserversorgung.

 

  • Der Wandhydrant Typ S mit formstabilem Schlauch ist allein für den Selbsthilfebereich gedacht. Eine Nutzung durch die Feuerwehr ist nicht möglich.
  • Der Wandhydrant Typ F mit formstabilem Schlauch ist für die Brandbekämpfung durch Laien und Feuerwehr ausgerüstet.
  • Der Wandhydrant Typ F mit Flachschlauch ist dagegen nur für die Brandbekämpfung durch Fachpersonal (betriebliche Brandschutzhelfer und Feuerwehr) geeignet.

     

Löschwasseranlage „nass” mit Wandhydranten Typ F

Bei einer Löschwasseranlage „nass” mit Wandhydranten vom Typ F nach DIN 14462 ist ein freier Auslauf Typ AA, AB nach DIN EN 1717 einzusetzen. Die Wandhydranten vom Typ F sind für die Nutzung durch die Feuerwehr und zur Selbsthilfe vorgesehen. Sie werden in zwei Leistungsklassen unterschieden:

  • 3 x 100 l/min (18 m/h) bei mindestens 0,3 MPa Fließdruck
  • bei Hochhäusern 3 x 200 l/min (36m/h) bei mindestens 0,45 MPa bar Fließdruck

Bei Wandhydranten vom Typ S beträgt der Mindestfließdruck 0,2 MPa bei einem Durchfluss von je 24 l/min. Hierfür besteht eine Gleichzeitigkeit von 2 x 24 l. Der max. Fließdruck bei beiden Wandhydrantentypen liegt bei 0,8 MPa.

Wandhydranten stehen in verschiedenen Ausführungen mit Flachschläuchen und formstabilen Schläuchen zur Verfügung. Des Weiteren stehen Schränke für Steigleitungen „trocken“ zur Verfügung. (siehe Abb. 1 + Abb. 2)

Zusätzlich zur Ausstattung nach DIN 14461-1 Tabelle 1, kann ein Fach für einen Druckknopfmelder und/oder ein Fach für einen Feuerlöscher vorhanden sein. Zu jedem Wandhydrantenschrank ist eine Montageanleitung beizulegen. Die Montagehöhe beträgt 1400 (± 200) mm von der Oberkante des Fertigfußbodens.

In der Praxis kommen immer häufiger „Schmalhydranten“ zur Anwendung, welche allerdings nicht der Norm entsprechen. Sie finden beispielsweise Anwendung in Verkaufsstätten und Speditionen. Der Einsatz der „Schmalhydranten“ sollte unbedingt genehmigt werden, da es sonst bei der Abnahme der Anlage Probleme geben kann. (siehe Abb. 3)

 

Anlagen mit Einspeisung von chemischen Zusätzen (Schaummittel)

In Anlagen mit zusätzlicher Einspeisung von Nichttrinkwasser ist allein der Einsatz eines freien Auslaufes Typ AA, AB nach DIN EN 1717 gestattet. Der freie Auslauf wird durch einen Vorlagebehälter mit Druckerhöhungsanlage erreicht. Kann der Wasserversorger die geforderte Löschwassermenge nicht bereitstellen, muss die Größe des Vorlagebehälters entsprechend angepasst werden. Die Anforderungen an die Druckerhöhungsanlage ergeben sich aus der DIN 14462 und dem Brandschutzkonzept. 

Trinkwasserinstallation mit Wandhydranten Typ S

Sind in einem Objekt keine Wandhydranten vom Typ F gefordert, können Wandhydranten vom Typ S eingesetzt werden. Als Löschwasserübergabe ist das Schlauchanschlussventil 1“ mit Sicherungseinrichtung nach DIN 14461-3 vorzusehen. Eine Rohrnetzberechnung ist erforderlich, um einen Austausch des Wassers in den Rohrleitungen sicherzustellen. Bei der Einbindung einer Wandhydrantenanlage vom Typ S in die Trinkwasserinstallation sind die Kosten geringer als bei einer Wandhydrantenanlage vom Typ F. Bei einem nicht ausreichenden Wasseraustausch sind auch diese Wandhydranten analog zum Typ F über einen freien Auslauf bzw. eine Füll- und Entleerungsstation sicher vom Trinkwassernetz zu trennen.


Wenn die Feuerlöschanlage durch die Zwischenschaltung eines drucklosen Vorlagebehälters mit freiem Auslauf AA, AB nach DIN EN 1717 und anschließender Druckerhöhungsanlage keine direkte Verbindung zum Trinkwassernetz hat, spricht man von einem „mittelbaren Anschluss“. Alle anderen Anschlussarten haben dementsprechend eine unmittelbare Verbindung zur Trinkwasserinstallation:

 

  • Füll- und Entleerungsstation nach DIN 14463-1 für Wandhydrantenanlagen Typ F und Typ S sowie für Unter- und Überflurhydranten
  • Füll- und Entleerungsstation nach DIN 14463-2 für Anlagen mit offenen Düsen
  • Direktanschlussstation nach DIN 14464 für Sprinkler- oder Sprühwasserlöschanlagen
  • Schlauchanschlussventil nach DIN 14461-3 für Wandhydrant Typ S
  • Unter- und Überflurhydrant nach DIN EN 14384 und DIN EN 14339

     

In der Tabelle 1 der DIN 1988-600 sind folgende Löschwasserübergabestellen mit ihren Anschlussarten aufgeführt:

 

  • freier Auslauf Typ AA, AB nach DIN EN 1717
  • Füll- und Entleerungsstation nach DIN 14463-1
  • Füll- und Entleerungsstation nach DIN 14463-2
  • Direktanschlussstation nach DIN 14464
  • Schlauchanschlussventil 1“ mit Sicherungseinrichtung nach DIN 14461-3
  • Unter- und Überflurhydranten nach DIN EN 14339 und DIN EN 14384 

     

Ein unmittelbarer Anschluss von Löschwasseranlagen darf ausschließlich mit Füll- und Entleerungsstationen mit DIN/DVGW Prüfzeichen erfolgen.

Füll- und Entleerungsstationen müssen nach DIN 14462 installiert werden. Diese Systeme sind immer dann zu bevorzugen, wenn das Rohrnetz trocken gehalten werden muss (z. B. bei Frostgefahr).

Bei der Planung von „nass/trocken“ Löschwassersystemen ist Folgendes zu beachten: Am hydraulisch ungünstigsten Wandhydranten muss nach max. 60 Sekunden Löschwasser bereitstehen. Diese Anforderung kann dazu führen, dass erheblich größere Volumenströme in der Füllphase benötigt werden als in der Betriebsphase der Löschwasseranlage.

  • Beispiel

    Wandhydrantenanlage 3 x 100 l/min (18 m³/h max. Betriebsvolumenstrom), Wandhydrantenanlage besteht aus 100 m Rohrleitung DN 80 (Rohrinhalt 5,42 l/m) = Wasserinhalt Rohrleitungssystem 542 l; daraus resultiert ein Füllvolumenstrom von ca. 700 l/min (42 m³/h).

Leider kommt es häufig vor, dass diese großen Wassermengen nicht vom Wasserversorger zur Verfügung gestellt werden können. In solchen Fällen muss das Löschwasser für die Füllphase in einem Vorlagebehälter bevorratet werden. Die zugehörige Druckerhöhungsanlage sorgt für die maximalen Fließdrücke. Zusätzlich benötigt die Füll- und Entleerungsstation Grenztaster an den Wandhydranten, damit die Anlage ausgelöst werden kann. Hierfür müssen alle Grenztaster miteinander verkabelt werden.


In Außenbereichen von Firmen- und Privatgrundstücken können im Brandschutzkonzept Unter- und Überflurhydranten erforderlich sein. Es gelten folgende normative Aussagen für die Installation der Hydranten:

Die DIN 1988 Teil 600 sagt aus, dass Unter- und Überflurhydranten nur „mittelbar“ an das Trinkwassernetz angeschlossen werden dürfen, wenn der Spitzenvolumenstrom größer als der Löschwasservolumenstrom ist. Im Bedarfsfall muss eine Wassermenge je Unter- und Überflurhydrant von 800 l/min bzw. 1600 l/min mit einem konstanten Druck von 0,15 MPa für einen Zeitraum von mindestens zwei Stunden durch den Wasserversorger bereitgestellt werden. Unter- und Überflurhydranten sind immer gemäß Vorgabe der zuständigen Ordnungsbehörde zu kennzeichnen.

 

Technische Daten Überflurhydrant mit Kugelabsperrung und Fallmantel

  • DN 100 - Druckstufe PN 16 Rohrdeckung 1000 mm, 1250 mm, 1500 mm
  • Unterteil mit senkrechtem Flanschanschluss nach ISO 7005-2 (DIN 2501)
  • selbsttätige Entleerung
  • zweiteilige Säule
  • Kugelgehäuse aus GJS-400-15/-500-7 nach DIN EN 1563 (GGG 40/50 nach DIN 1693)
  • Fallmantel aus Edelstahlblech
  • Ventilabgänge unter dem Fallmantel
  • Festkupplungsanschluss 2 x B auf Ventilabgängen und 1 x A am Mantelgehäuse
  • Alternative: 2 x B-Anschluss ohne A-Anschluss Umfahrtrennstelle aus Titan und Trennbuchsen
  • Ventilgestänge aus Edelstahl, Kunststoffkugel für Doppelabsperrung
  • Befestigungsschrauben aus Edelstahl A2
  • Oberflächen innen: Säulenoberteil/Unterteil voll emailliert nach DIN 3475
  • Oberflächen außen: Epoxy beschichtet nach DIN 30677-2 und GSK-Richtlinien; Oberteil, Haubendeckel und Fallmantel zusätzlicher UV-Schutz mit Polyesterfinish, ähnlich RAL 3000

     

Technische Daten Unterflurhydrant mit Kugelabsperrung

  • DN 80 Druckstufe PN 16 Rohrdeckung 800 mm, 1000 mm, 1250 mm, 1500 mm Standardanschluss in AD1 senkrechter Flanschanschluss nach ISO 7005 - 2 (DIN 2501) 8 Löcher Mantelrohr
  • Kugelgehäuse
  • Abschlusskappe
  • Klaue u. Vierkantschoner aus GJS-400-15/500-7 nach DIN EN 1563 (GGG 40/50 nach DIN 1693) Kunststoffkugel für Doppelabsperrung
  • Befestigungsschrauben aus Edelstahl A2
  • selbsttätige Entleerung
  • Klauendeckel aus GJL-250 nach DIN EN 1561 (GG 25 nach DIN 1691) mit verzinkter Kette; alternativ mit selbstschließendem/oder offenstehendem Deckel
  • Oberflächen außen: Epoxy beschichtet nach DIN 30677-2 und GSK-Richtlinien ähnlich RAL 5017
  • Oberflächen innen: emailliert nach DIN 3475
  • Alternative: Oberfläche innen und außen Epoxy beschichtet nach DIN 30677-2 und GSK-Richtlinien
    ähnlich RAL 5017; innen und außen emailliert nach DIN 3475 Anschlussform: AD1, alternativ: in AD2 seitlicher Flansch/alternativ: mit Tyton Muffe senkrecht; Alternative: Spitzende mit Verriegelung BAIO System, Ausführung entspricht AVK Mittelmann Serie 35/10 oder gleichwertige Auswahl: Anschluss: AD1/AD2; Flansch/Tyton Muffen Spitzende/Baio Spitzende Deckel: mit Kette/offenstehend/selbstschließend

(Quelle: Herstellerdatenblätter Firma AVK Mittelmann)

Weitere Informationen über den Bereich „Unter- und Überflurhydranten“ finden Sie in den Normen DIN 1988-600, DIN 14462, DIN EN 14339, DIN EN 14384.


Gemeinden und Kommunen stellen über den örtlichen Wasserversorger in der Regel „Trinkwasser“ in ausreichenden Mengen zur Verfügung. Allerdings sind die Wasserversorger nicht verpflichtet, die „Löschwasserversorgung“ sicherzustellen.

Im Zuge der Trinkwasserinstallation existiert fast in jeder größeren Gemeinde ein Hydrantennetz, welches den Grundbedarf an Löschwasser im „öffentlichen Raum“ der Kommunen absichert. Für die Bereitstellung der Löschwassermenge kann auch eine unabhängige Löschwasserversorgung für den Objektschutz genutzt werden. Diese unterscheidet sich zwischen einer „erschöpflichen“ Löschwasserversorgung, zu der z. B. Löschwasserteiche und Löschwasserbehälter (Zisternen) gehören und einer „unerschöpflichen“ Löschwasserversorgung, die sich z. B. offener Gewässer und Löschwasserbrunnen bedient.

Bei der Löschwasserentnahme aus dem öffentlichen Trinkwassernetz muss eine Klärung mit dem Wasserversorger erfolgen. Die Löschwasserversorgung sollte immer parallel zur Aussage im Brandschutzkonzept mit der örtlichen Feuerwehr abgesprochen werden.


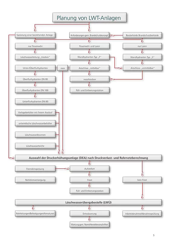
Auswahl der Druckerhöhungsanlage (DEA)

Druckerhöhungsanlagen für Hydrantenanlagen müssen den Anforderungen der DIN 14462 entsprechen. Die Auswahl einer passenden Druckerhöhungsanlage kann nur durch eine vorherige Druckverlustberechnung erfolgen. Der Druckverlust einer Hydrantenanlage setzt sich aus folgenden Gegebenheiten zusammen:

  • geodätische Höhe
  • Druckverlust aus Rohrreibung und Einzelwiderständen (Armaturen, Formstücke etc.)

     
  • Beispiel einer Auslegung
    Anforderung:

     
    • Wandhydrantenanlage Typ F 3 x 100 l/min bei einem Mindestfließdruck von 3 bar am hydraulisch ungünstigsten Hydranten
    • höchster Hydrant: 18 m (0,18 MPa)
    • Druckverlust aus Rohrreibung und Einzelwiderständen: 0,086 MPa
    • Mindestfließdruck am hydraulisch ungünstigsten Hydranten: 0,3 MPa
    • Berechnung: 0,18 MPa + 0,086 MPa + 0,30 MPa = 0,566 MPa

       

Die hierfür in Frage kommende Druckerhöhungsanlage muss bei einem Förderstrom von 18 m³/h eine Förderhöhe von 56,6 m erreichen.

Wichtig bei der Auslegung der Druckerhöhungsanlage ist, dass der maximale Fließdruck laut DIN 14462 von 0,8 MPa am Wandhydranten nicht überschritten wird. Bei Neuinstallationen kann man z. B. durch den Einsatz mehrerer Druckzonen dieser Anforderung nachkommen. Bei Bestandsgebäuden können Armaturen zur Druckreduzierung notwendig werden.

Sollte der maximale Fließdruck von 0,80 MPa an einzelnen Wandhydranten einer Anlage überschritten werden, so ist hier ein Einsatz von Drosselscheiben notwendig. Diese werden am Schlauchanschlussventil, hinter der Storzkupplung, eingebaut. Die Auslegung der Drosselscheiben richtet sich nach der zu reduzierenden Druckdifferenz (Drucküberschuss) am Wandhydranten. Der Einbau der Drosselscheibe muss gut sichtbar am Schlauchanschlussventil, durch ein Schild oder einen Aufkleber kenntlich gemacht werden.

Bei Wandhydrantenanlagen können Armaturen zur Druckreduzierung notwendig werden. Druckminderer sind möglichst zentral anzuordnen und zur Einregulierung von Druckzonen zu verwenden. Diese sind mindestens für den Nenndruck PN 16 zu bemessen, sofern nicht höhere Innendrücke einen höheren Nenndruck erforderlich machen. Sie müssen so beschaffen sein, dass es zu keiner Beeinträchtigung des Brandschutzes kommen kann. Druckminderer müssen gekennzeichnet und gegen unbefugtes Verstellen gesichert werden. Ferner müssen sie aus nicht brennbaren Materialien gefertigt sein und für den Einsatzzweck geeignet und zugelassen sein. Die Instandhaltung erfolgt spätestens jährlich oder nach Herstellerangaben früher.


Es ist möglich, dass im Brandschutzkonzept eine Netzersatzanlage (Notstromnetz) oder ein Notstromgenerator gefordert wird. Sollte ein Notstromnetz gefordert sein, ist dieses mit einem zweitem Stromnetz und einem Netzumschaltgerät gemäß der elektrischen Leistung auszulegen. Ist ein Notstromnetz mit einem Stromgenerator vorhanden oder gefordert, so ist die Druckerhöhungsanlage in das Notstromnetz einzureihen. Bei der Auslegung des Notstromnetzes ist auf die Anforderungen des Brandschutzkonzeptes zu achten und Baumaßnahmen sind ggf. vorzunehmen.

 

Feuerwehreinspeisung

Für die Aufrechterhaltung der Betriebssicherheit von Löschwasseranlagen bei einzelner Spannungsversorgung der Druckerhöhungsanlage, ist als Mindestmaßnahme eine Einspeisungseinrichtung für die Feuerwehr vorzusehen.

Diese Feuerwehreinspeisung besteht generell aus einer Einspeisearmatur nach DIN 14461 Teil 4, einem Schutzschrank für die Einspeisearmatur sowie einer Rückschlagsklappe DN 80. Eine Feuerwehreinspeisung ist nur bei mittelbar angeschlossenen Löschwasseranlagen (z. B. freier Auslauf über einen Vorlagebehälter) zulässig.

Die Anforderungen an die Betriebssicherheit von Löschwasseranlagen sind dem Brandschutzkonzept zu entnehmen.
 

 


Um einen sicheren Betrieb der Feuerlöschanlage zu gewährleisten, kann eine Notstromversorgung gefordert werden. Bei einem Netzausfall ist die Betriebsbereitschaft der Füll- und Entleerungsstation gemäß DIN 14463 durch Akkumulatoren (Akkus) für 60 Stunden zu gewährleisten.

Durch die hohe Stromaufnahme einer Druckerhöhungsanlage, ist eine Notversorgung über Akkus schwer umzusetzen. Die Forderung aus der Norm kann durch ein zweites Stromversorgungsnetz oder durch ein Notstromaggregat sichergestellt werden.


Sicherungseinrichtungen zur Verhütung von Trinkwasserverunreinigungen durch ein Rückfließen sind grundsätzlich oberhalb der Rückstauebene zu installieren, so dass anfallendes Überlauf- und Entleerungswasser aus dem Vorlagebehälter bzw. aus der Füll- und Entleerungsstation und anderen Armaturen sicher abgeführt wird.

Bei Installationen unterhalb der Rückstauebene muss durch entsprechende Maßnahmen (z. B. Installation einer Hebeanlage) sichergestellt werden, dass das komplette Überlaufwasser bzw. Entleerungswasser am Vorlagebehälter des Rohrnetzes an der Füllund Entleerungsstation sicher abgeführt wird. Es sind dabei die Regeln der DIN 1986- 100/DIN EN 12056 sowie DIN 14462 zu beachten.


In der DIN 14462 und der DIN 1988-600 wurden Löschwasserübergabestellen (LWÜ) als Schnittstellen zwischen Trinkwasserinstallation und Feuerlöschanlagen definiert. Die Anforderungen der Trinkwasserverordnung 2011 im Bereich des Anschlusses der Feuerlöschanlage an das Trinkwassernetz ist erfolgt. Begriffsbestimmungen wurden in diesem Zuge erweitert bzw. aktualisiert.

Eine Feuerlösch- und Brandschutzanlage kommt während ihrer gesamten Lebensdauer nur im Brandfall zum Einsatz. Da es im Bereitschaftszustand der Anlage zu keinem ausreichenden Wasseraustausch kommt, wird durch die LWÜ eine sichere Trennung zum Trinkwassernetz sichergestellt, wodurch die Trinkwasserqualität nicht beeinträchtigt wird.

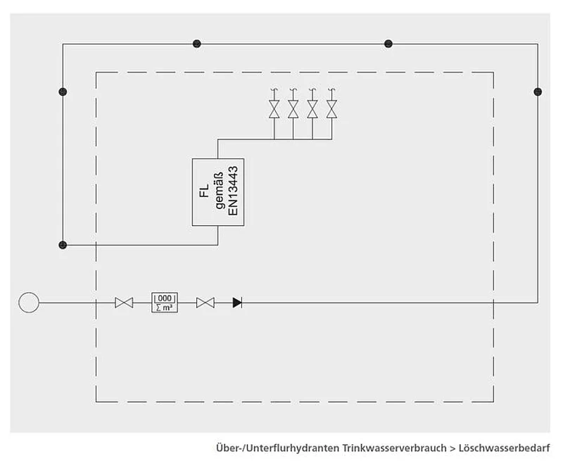
Die Einzelzuleitung vom Trinkwasserverteiler zur LWÜ ist auf eine Länge von 10 x DN und 1,5 Liter begrenzt. Sollte diese Strecke länger als beschrieben sein, ist eine automatische Spüleinrichtung einzusetzen. Das 3-fache Wasservolumen der Einzelzuleitung ist einmal pro Woche auszutauschen. Hierbei gelten Fließgeschwindigkeiten bei einer Nennweite von DN 50 von mind. 0,2 m/s und bei einer Nennweite über DN 50 von 0,1 m/s. Der Spitzendurchfluss darf eine Fließgeschwindigkeit von 5 m/s nicht überschreiten.

 

Löschwasseranlage „nass-trocken” mit Wandhydranten Typ F

Die Füll- und Entleerungsstation nach DIN 14463-1 wird über Grenztaster an den Wandhydranten (Typ F) ausgelöst und anschließend strömt das Löschwasser in die trockene Steigleitung. Ein Rohrbelüfter und Rohrentlüfter ist nach Bedarf einzuplanen.

Eine hinreichende Wasserversorgung muss gewährleistet sein, durch die das Löschwasser innerhalb von 60 Sec. am entferntesten Wandhydranten bereitsteht. Die Rohrleitung ist so zu verlegen, dass sie sich zur Anlage hin entleeren kann.

Sollte dieses nicht möglich sein, sind zusätzliche Entleerungspunkte zu berücksichtigen. Wird für die Füllphase nicht genügend Wasser vom Wasserversorger zur Verfügung gestellt, so ist diese Menge in einem Vorlagebehälter bereitzustellen.

 

Feuerlösch- und Brandschutzanlagen mit offenen Düsen

Bei diesem Anlagentyp kann der freie Auslauf, die Füll- und Entleerungsstation nach DIN 14463-2 und die Direktanschlussstation nach DIN 14464 zum Einsatz kommen. Das Rohrnetz ist im Ruhezustand leer und wird erst nach der Auslösung geflutet. Eine 2-Linien-Abhängigkeit ist zur Auslösung der Anlage gefordert. Eingesetzt werden diese Anlagen beispielsweise zur Berieselung von Behältern. Die Normen DIN 14494, DIN 14495, DIN CENT/TS 14816 und VdS 2109 finden Anwendung. Der benötigte Spitzenvolumenstrom, welcher für die Flutungsphase benötigt wird, ist zu errechnen und durch das Wasserversorgungsunternehmen sicherzustellen.

 

Anlagen mit Unter- und Überflurhydranten

Unter- und Überflurhydranten dienen der Feuerwehr zur Brandbekämpfung im Brandfall. Der freie Auslauf Typ AA, AB nach DIN EN 1717 oder die Füll- und Entleerungsstation nach DIN 14463-1 dürfen bei Unter- und Überflurhydranten als LWÜ eingesetzt werden.

Bei der Füll- und Entleerungsstation ist für die Füllphase ein Spitzenvolumenstrom sicherzustellen. Die bereitzustellende Löschwassermenge wird in dem DVGW-Arbeitsblatt W 405 geregelt und beträgt je nach Objekt 48 m³/h, 96 m³/h oder 192 m³/h. Sollte der Trinkwasserbedarf höher als der Löschwasserbedarf ausfallen, können die Hydranten unmittelbar angeschlossen werden. Diese Situation ist jedoch selten gegeben, so dass in der Regel der Einsatz einer LWÜ erforderlich ist.

Die Unter- und Überflurhydranten sind nach der DIN EN 14339 bzw. DIN 14384 auszulegen. Daraus ergibt sich, dass der Anschluss einer Feuerlöschanlage in der Regel mittelbar auszuführen ist. Ein unmittelbarer Anschluss ist nur bei Hydrantenanlagen zulässig.

 

Selbsttätige Löschhilfeanlage

Eine selbsttätige Löschhilfeanlage wirkt als Feuerlöschanlage mit eingebrachten Düsen. Wird die Auslösetemperatur des Verschlusses erreicht und die Sprinkler geöffnet, kann Löschwasser austreten. Es werden drei Arten von Sprinkleranlagen unterschieden.

Bei einer Nass-Sprinkleranlage ist das Rohrnetz hinter dem Nassalarmventil ständig mit Löschwasser gefüllt, das nach der Auslösung eines Sprinklers ausströmen kann. Eine Trocken-Sprinkleranlage hat ein mit Druckluft gefülltes Rohrnetz, welches erst nach Auslösung eines Sprinklers mit Wasser befüllt wird. Diese Anlage kommt in frostgefährdeten Bereichen zum Einsatz (z. B. Freiflächen, Kühlhäuser). Das Rohrnetz einer vorgesteuerten Trocken-Sprinkleranlage ist ebenfalls mit Druckluft gefüllt.

Die Auslösung erfolgt über eine Brandmeldeanlage oder über einen Sprinkler. Als Normen finden die DIN 14489, DIN EN 12845 und die VdS CEA 4011 ihre Anwendung. Als Löschwasserübergabestelle kommen der freie Auslauf Typ AA, AB nach DIN EN 1717 oder die Direktanschlussstation nach DIN 14464 in Betracht.

Achtung: Nach DIN 1988-600 ist der Spitzenvolumenstrom bei Direktanschlussstationen nach DIN 14464 auf 50 m³/h begrenzt. Wird die LWÜ weiter als 10 x DN entfernt sein und der Leitungsinhalt 1,5 l überschreiten, muss die Stichleitung einmal wöchentlich mit dem dreifachen Wasservolumen und mit einer Fließgeschwindigkeit von mindestens 0,1 m/s ausgespült werden.

  • Beispiel

    Leitungslänge 250 m x Nennweite DN 80 = Rohrvolumen 1.250 Liter 
    Die Spülanforderung gemäß DIN 14462 beträgt das Dreifache des Rohrvolumens, somit werden ca. 3.750 Liter Trinkwasser pro Woche ausgespült.

Rohrmaterialien und deren Verbindungen, Befestigungen sowie Armaturen müssen aus brandschutztechnischer Sicht für Löschwasseranlagen geeignet sein. Die Auswahl der dafür passenden Werkstoffe und die Montage erfolgt nach DIN 14462 und DIN 1988-600 sowie nach den Vorgaben der Hersteller.  

Übersicht Systeme

Feuerlöschanlagen sind Einrichtungen des vorbeugenden Brandschutzes. Sie dienen der Rettung und dem Schutz von Personen sowie der Brandbekämpfung. Die Viega Installationssysteme Profipress, Sanpress, Sanpress Inox und Prestabo sendzimirverzinkt sind geeignet  für Löschwasserleitungen „nass“, „nass/trocken“ und „trocken“ nach DIN 14462. Die Systeme Sanpress und Sanpress Inox sind DEKRA geprüft nach DIN 14462. (siehe  auch Abb. 1) 

Verbindungstechnik und Montage

Kunststoffrohre dürfen als Löschwasserleitungen nur erdverlegt verwendet werden oder in Hausanschlussräumen ohne Brandlasten. Der Einsatz von Installationssystemen mit Press-, Klemm- und Steckverbindungen in Löschwasseranlagen „trocken“ und „nass/trocken“ ist problematisch, weil die Verbindungen bei direkter Beflammung ihre Form- und Kraftschlüssigkeit verlieren und undicht werden können. Es dürfen deshalb nur für den speziellen Anwendungsfall geprüfte Systeme verwendet werden, z. B. für den Einsatz in Trockensprinkleranlagen. 

  • Installationssysteme mit Press-, Klemm- und Steckverbindung in Löschwasseranlagen „trocken“ und „nass/trocken“ dürfen nur verwendet werden, wenn sie über Zulassungen für den Anwendungsfall verfügen. 

Bei der Montage von Rohrleitungen in Löschwasserinstallationen sind die anerkannten Regeln der Technik und die Produktinformationen der Hersteller zu beachten. Für die Ausführung und Befestigung von Löschwasserleitungen und deren Zuleitungen zur Löschwasserübergabestelle geht DIN 14462 von einer Einsatzdauer von 2 Stunden aus. 

Besonders ist zu beachten:

  • Installationen sind in Anlehnung an DIN 4102 Teil 4/Teil 21 auszuführen.
  • Befestigungspunkte, wie Traversen, Kragarme etc. sind entsprechend der zu erwartenden Einsatzdauer auszuführen und ggf. mit einem brandschutztechnischen Wandbelag zu versehen.
  • Absperreinrichtungen in Rohrleitungen des Löschwassers sind möglichst zentral anzuordnen, zu kennzeichnen und gegen unbefugtes Schließen zu sichern.
     

Für die Ausführung und Befestigung der Löschwasserleitungen ist zu beachten:

  • Installationen sind nach DIN 4102-4 Kapitel 8.6 auszuführen.
  • Installationen sind nur zulässig in brandlastfreien Bereichen, wie Treppenräume, Sicherheitstreppenräume und zugehörigen Schleusen.
  • Bei Installation in Bereichen mit Brandlasten sind Absperreinrichtungen in der Rohrleitung des Löschwassers nicht zulässig.

Die Verwendung von Kunststoffdübeln in Brandschutzanlagen ist nicht zulässig. Bei der Verwendung von Dübeln bestehen unterschiedliche Anforderungen für Produkte mit und ohne brandschutztechnischen Eignungsnachweis.
 

Es gilt für Dübel ohne brandschutztechnischen Eignungsnachweis:

  • Werkstoff Stahl
  • Mindestgröße M8
  • Einbautiefe mindestens doppelte Dübellänge
  • Rechnerische Zugbelastung max. = 500 N 

Die maximale Belastung und die Einbauart für Dübel mit brandschutztechnischem Eignungsnachweis sind im Verwendbarkeitsnachweis definiert. In beiden Fällen sind die zulässigen Befestigungsabstände nach Herstellerinformationen zu beachten. (siehe auch Abb. 2)

Bei der Befestigung von Löschwasserleitungen an Stahlbauteilen mit Brandschutzkleidung sind anstelle der Dübel kraftschlüssige Befestigungsmittel einzusetzen. Die oben angegebene Begrenzung der rechnerischen Spannung ist einzuhalten. Die Brandschutzverkleidung der Stahlbauteile ist auf eine Länge von mindestens 300 mm auf die Abhängung zu erweitern. So wird verhindert, dass die Feuerwiderstandsdauer der Stahlbauteile durch den Anschluss der Abhänger beeinträchtigt wird.

Die Länge einer Abhängung (Abstand Unterkante Feuerlöschleitung und Unterkante Deckel) darf bei ungeschützten Abhängern 1,5 m nicht überschreiten. (siehe auch Abb. 3)

Quelle: Viega GmbH & Co. KG
 

Rohrbefestigung

Die aus der Längenausdehnung der Löschwasserleitungen bei Brandeinwirkung resultierenden Kräfte dürfen Brandschottungen nicht zerstören. Deshalb sind Löschwasserleitungen mit Fixpunkten in ausreichender Anzahl zu befestigen, um diese Kräfte kontrolliert über Dehnungsausgleicher (L- oder U-Rohr) oder Kompensatoren abzuleiten. Es gelten dabei die allgemeinen Installationsgrundsätze des Kapitels „Metallene TW-Installationssysteme - Anwendungstechnik“ im Viega Praxishandbuch.

Zusätzliche Fixpunkte müssen in Feuerlöschleitungen „nass/trocken“ und „trocken“ vorgesehen werden, um die Reaktionskräfte der Löschwasserleitungen während des Befüllungsvorgangs abzufangen. Diese zusätzlichen Fixpunkte müssen am Anschluss von Druckerhöhungsanlagen auf der Druckseite und bei fernbetätigten Füll- und Entleerungsstationen (Nass-Trocken-Stationen) nach DIN 14463 angebracht werden. Für die Fixpunkte haben sich handelsübliche Konstruktionen aus nicht brennbaren Baustoffen (z. B. Rohrbügel) bewährt. (siehe auch Abb. 4) 

Brandschutzverkleidung für Rohrleitungen

Löschwasserleitungen und die Zuleitungen zur Löschwasserübergabestelle sind entsprechend der zu erwartenden Einsatzdauer auszuführen – DIN 14462 geht von 2 Stunden aus. Löschwasserleitungen und Halterungen müssen so ausgelegt und geschützt sein, dass sie im Falle eines Brandes die für die mechanische Belastbarkeit kritische Temperatur von 500 °C nicht überschreiten. Nur so kann die Funktionsfähigkeit der Löschanlage gewährleistet werden, auch wenn sie durch zusätzlich auftretende Extrembelastung beansprucht wird (z. B. durch herabfallende Gegenstände). Bei der Verlegung von Löschwasserleitungen „trocken“ und „nass/trocken“ in Bereichen mit hohen Brandlasten sind zusätzliche Maßnahmen erforderlich.

Der Arbeitskreis V – Ausschuss für Feuerwehrangelegenheiten, Katastrophenschutz und zivile Verteidigung bei der ständigen Konferenz der Innenminister und -senatoren der Länder – hat in diesem Zusammenhang eine Untersuchung zum Verhalten von trockenen Steigleitungen bei direkten Flammeneinwirkungen in der Universität Karlsruhe (TH) in Auftrag gegeben.

Der Forschungsbericht Nr. 142 vom Januar 2007 kommt zu der Aussage: „Als Ergebnis der vorgelegten Arbeit, dürften daher trockene Steigleitungen in keinem Fall ungeschützt verlegt werden, da bei deren Brandbelastung unkalkulierbare Gefährdungen auftreten.“

Brandschutz-Maßnahmen für Löschwasserleitungen:

  • In brandlastfreien Treppenräumen, Schleusen und Rettungswegen sind keine zusätzlichen Maßnahmen erforderlich.
  • In Bereichen mit selbsttätigen Löschanlagen (z. B. Sprinkler-Löschanlagen) sind in Abstimmung mit dem Brandschutzkonzept bzw. den örtlichen Brandschutzbehörden Maßnahmen einzuleiten.

Als Brandschutzverkleidung von Feuerlöschleitungen können verwendet werden:

  • unkaschierte und metallkaschierte Brandschutz-Rohrschalen
  • Mineralwolle-Isolierung nach DIN 4102 Teil 4
  • zugelassene Brandschutz-Systeme aus anderen Baustoffen


Die Verkleidungsdicke muss für jedes Bauteil separat, entsprechend der allgemeinen bauaufsichtlichen Zulassung des gewählten Systems, gewählt werden. Ergeben sich aufgrund der Berechnungslasten Zugspannungen in den Halterungen, die deutlich über 6 N/mm² liegen, müssen nach den Grundsätzen der DIN 4102-4 auch die Abhänger verkleidet werden.

Quelle: Viega GmbH & Co. KG


Inbetriebnahme

Löschanlagen, Wandhydranten, Unter- und Überflurhydranten sowie Löschanlagen „trocken“ werden nach Fertigstellung sowie nach Änderung der Anlage von einem Sachkundigen in Betrieb genommen. Die einzelnen Schritte der Inbetriebnahme werden im Folgenden aufgezählt:

Sichtprüfung:

  • Blick auf die Gesamtanlage hinsichtlich der Vollständigkeit der Bauteile und Sauberkeit
  • alle Bauteile auf äußere Beschädigungen überprüfen (bei Vorlagebehältern insbesondere auf die Beschichtung achten)

Funktionskontrolle:

  • der Sitz der Gleitringdichtung an der Pumpe ist einwandfrei
  • Druck im Membrandruckgefäß (Druck = Anlagendruck) überprüft
  • Druckschalter/Grenztaster sind richtig angeschlossen
  • Stabelektroden sind richtig angeschlossen und auf Funktion überprüft

Bei Füll- und Entleerungsstationen zusätzlich:

  • Kompressor baut Druck auf und alle Druckluftleitungen sind richtig angeschlossen
  • Entleerungsventile funktionieren einwandfrei
  • Magnetventile sind richtig verdrahtet und funktionieren einwandfrei
  • die Batterieladespannung ist ausreichend
  • optische/akustische Signalgeber, falls vorhanden, funktionieren einwandfrei  

SPS/Timer:

  • Einstellen von Datum und Uhrzeit
  • Einstellen der Spülzeit
  • Einstellen des Pumpenanlaufes


Abnahmeprüfung durch einen Sachverständigen (Abs. 5)

Nach der Inbetriebnahme erfolgt in der Regel eine Sachverständigenabnahme. Hierfür müssen folgende Unterlagen vorliegen:

  • Inbetriebnahmeprotokoll
  • Kontrollbuch mit allen zur Anlage gehörenden technischen Unterlagen
  • ggf. eine gültige Rohrisometrie und Rohrnetz- und/oder Füllzeitberechnung
  • Bauauflagen und Brandschutzkonzept


Bei der Abnahmeprüfung wird die Anlage auf Löschwirksamkeit und Betriebssicherheit geprüft. Bei der Betriebssicherheit wird sowohl auf die Sicherheit der einzelnen Anlagenteile während ihrer Funktion als auch auf den sicheren Betrieb der Energieversorgung und des zur Nachspeisung eingebundenen Trinkwassersystems geachtet. Dies gilt sowohl für die erforderliche Wassermenge als auch für die einzuhaltende Trinkwasserhygiene (siehe DIN 1988-600 und DIN EN 1717).

Mängel an der hygienischen Trennung gefährden die Nutzer des Gebäudes und werden auch bei Bestandsanlagen nicht geduldet.

 

Nach der Fertigstellung sowie nach einer wesentlichen Änderung einer Anlage ist eine Sachverständigenabnahme und eine Inbetriebnahme durch einen Sachkundigen nach Landesrecht durchzuführen.

Die Forderungen aus den Bauauflagen und/oder aus dem Brandschutzkonzept sowie aus den Planungsgrundlagen der DIN 14462 sind zu prüfen und zu dokumentieren. Der Errichter hat vor der Abnahmeprüfung eine Errichtererklärung, ein Errichterprotokoll und das Kontrollbuch zur Verfügung zu stellen.

Im Rahmen der Abnahmeprüfung muss die Anlage auf Wirksamkeit und Betriebssicherheit geprüft werden.

  • Die Wirksamkeit bezieht sich auf die Löschwirksamkeit der Anlage.
  • Die Betriebssicherheit bezieht sich auf die gesicherte Funktion der verwendeten Anlagenteile, die Bereitstellung der Wasser- und Energieversorgung über den geforderten Zeitraum und die Trinkwasserhygiene.

     

Dabei ist die Einhaltung folgender Vorgaben und Regeln zu überprüfen:

  • Bauauflagen, Brandschutzkonzept Planungsgrundlagen nach der DIN 14462
  • Trinkwasserverordnung 11.2011 und soweit zutreffend:
    • sonstige mitgeltende Normen, insbesondere DIN 1988-600 und DIN 1988-800
    • Festlegungen des Wasserversorgers und der für den Brandschutz zuständigen Stelle
       

Anfallendes Wasser aus dem gesicherten Betrieb und aus Wartungsarbeiten ist sicher abzuführen. Hierfür kommen Entwässerungssysteme zum Einsatz, die nach der DIN 1986-100 bzw. nach den Normen der Reihe DIN EN 12056 ausgelegt und eingebaut werden.

Dies gilt insbesondere für:

Bei einem Vorlagebehälter und einer Füll- und Entleerungsstation ist ein Bodenablauf von größer/gleich DN 100 vorzusehen.


Instandhaltung


Die Instandhaltung (Inspektion, Wartung, Instandsetzung) von Wandhydranten und Löschanlagen soll nach den Vorgaben der DIN 14462 unter Beachtung der Herstellervorgaben in regelmäßigen Abständen erfolgen.

Bei der Inspektion und bei Wartungsarbeiten werden die Angaben aus der Abnahmeprüfung bzw. vorheriger Instandhaltungsmaßnahmen mit dem Ist-Stand der Anlage verglichen. Werden Abweichungen festgestellt, so sollten diese durch Instandsetzungsarbeiten entsprechend den Herstellervorgaben behoben werden.

Die Zeitabstände zwischen den Instandhaltungsmaßnahmen liegen, sofern die Herstellerangaben nicht davon abweichen, zwischen 1 Jahr (Wandhydrantenanlagen sowie Unter- und Überflurhydranten) und 2 Jahren (trockene Löschwasseranlagen). Durchgeführt werden diese Arbeiten von einem Sachkundigen. Unabhängig davon sind die nach anderen Vorschriften (z. B. Prüfverordnungen nach Landesbaurecht) ggf. erforderlichen wiederkehrenden Prüfungen durch einen Sachverständigen durchzuführen. Die einzelnen zu betrachtenden Punkte gleichen im Wesentlichen einer Inbetriebnahme und werden in einem Instandhaltungsprotokoll festgehalten.

Folgende Punkte sind während der Instandhaltungsmaßnahmen zu beachten:

  • Da der Brandschutz insbesondere bei Wartungsarbeiten an Wandhydranten eingeschränkt ist, kann eine Bereitstellung von Kompensationsmaßnahmen notwendig sein.
  • Die Wartungsarbeiten/Inspektionsarbeiten sind in einem überschaubaren Rahmen zu halten.

     

Wird am Ende der Instandhaltungsmaßnahme festgestellt, dass die Betriebssicherheit der Löschanlage nicht gegeben ist, so muss diese durch ein Schild mit der Aufschrift „AUßER BETRIEB“ gekennzeichnet werden.

Am Ende der Instandhaltungsmaßnahme wird ein Aufkleber nach DIN EN 671-3 gut sichtbar an der Außenseite der Tür aufgeklebt. Dieser darf die Angaben des Herstellers nicht verdecken und muss folgende Angaben enthalten:

  • das Wort „GEPRÜFT“
  • Name und Adresse des prüfenden Unternehmens
  • ein Identifikationskennzeichen des Sachkundigen
  • Datum (Tag, Monat und Jahr), an dem die Instandhaltung durchgeführt wurde

Zulauf prüfen:

  • Ist der Zulauf größer als 10 DN (Nenndurchmesser Rohr), ist eine Spüleinrichtung erforderlich (siehe auch DIN EN 1717, DIN 1988-600, Abschnitt 4.1.3).

Funktionskontrolle:

  • alle Schrauben sind festgezogen
  • Schwimmerventil ist leichtgängig und tropft nicht nach
  • Schieber lassen sich leichtgängig bewegen
  • der elektrische Anschluss der Anlage ist fachgerecht ausgeführt
  • die Pumpe ist entlüftet und die Drehrichtung stimmt 

Wandhydranten:

  • Prüfung auf Zugänglichkeit des Wandhydranten
  • Wandhydrantenschrank ist in der richtigen Höhe ein- bzw. angebaut (1400 ± 200 mm) und hat eine korrekte Beschilderung (inkl. Haspel)
  • Tür und Haspel sind leichtgängig
  • der Schlauch ist dicht und hat die richtige Länge (in der Regel 30 m)
  • das Schlauchanschlussventil ist dicht
  • der Grenztaster, sofern vorhanden, funktioniert elektrisch und mechanisch einwandfrei
  • Fließdruckmessung am ungünstigsten Wandhydranten (nach Vorgabe des Brandschutzkonzeptes)

Wandhydrant Minimax

Planungshinweise für LWT-Anlagen

Wichtig: Die einzelnen Punkte sind mit den örtlichen Brandschutzbehörden, der Bauaufsicht und den Wasserversorgungsunternehmen (WVU) abzustimmen! Die Planungshinweise sind auszugsweise aus der DIN 1988-600, EN 1717 und DIN 14462 sinngemäß übernommen worden.


SUCHBEGRIFFE

  1. Brandschutzkonzept
  2. Anzahl der Wandhydranten
  3. Leitungsgrößen und -Materialien
  4. Wassermenge/Löschwasserbedarf/Gleichzeitigkeit von Wandhydranten
  5. Versorgungsdruck/Druckverhältnisse/Druckberechnungen
  6. Feuerwiderstandsklassen F 30/F 60/F 90
  7. Anschlussarten der Löschwasserleitungen
  8. Vorlagebehälter
  9. Druckerhöhungsanlagen
  10. Füll- und Entleerungsstationen für Löschwasserleitungen „nass/trocken”
  11. Rückflussverhinderer
  12. Wasserzähler
  13. Löschwasserleitungen „trocken”
  14. Montage von Wandhydranten
  15. Schaum-/Wasserhydranten
  16. Hydranten/Hydrantenanlagen
  17. Löschwasser-Sauganschlüsse
  18. Erforderliche Absprachen
  19. Montagehöhen
  20. Literaturhinweise, Quellenangaben zur Löschwassertechnik
  21. Feuerlöscher, Brandklassen
  22. Regeln für die Ausrüstung von Arbeitsstätten mit Feuerlöschern
     
1. Brandschutzkonzept

Ein Brandschutzkonzept enthält Angaben über den Aufbau und die Anforderungen an die Feuerlösch- und Brandschutzanlagen unter Berücksichtigung des vorbeugenden und des abwehrenden Brandschutzes und der kundenspezifischen Anforderungen und Brandlasten.
 

2. Anzahl der Wandhydranten

Vor Festlegung der Einbauorte ist aus dem Brandschutzkonzept die Art des Wandhydranten ob Typ “F“ oder Typ “S“ auszuwählen, sowie die vorgeschriebenen Schlauchlängen und in welchen Bereichen Wandhydranten vorzusehen sind. Die Anzahl der Wandhydranten wird durch die Schlauchlänge und die maximal zulässige Fluchtweglänge in Hallen und Gängen vorgegeben, wobei der effektive Laufweg zu addieren ist und nicht die kürzeste Verbindung (Luftlinie) zwischen zwei Punkten. Die Schlauchlänge in den Wandhydranten ist planerisch mit 30 m anzusetzen, sofern das Brandschutzkonzept nicht andere Längen vorgibt. Es sollte im Idealfall jeder Entstehungsbrand mit drei Strahlrohren bekämpft werden können. An den Ausgangstüren in Hallen bzw. Fluchtwegtüren und in Treppenhäusern von größeren Gebäuden wie Hochhäusern, Bürogebäuden, Hotels oder Krankenhäusern sind pro Geschoss üblicherweise Wandhydranten zu installieren. Zu beachten ist dabei, dass ein Gang nur dann als Fluchtweg anerkannt wird, wenn die lichte Weite an der engsten Stelle mindestens 110 cm beträgt.
 

3. Leitungsgrößen und -materialien

Vorrangig werden Löschwasserleitungen „nass” und „nass/trocken” als Kupfer- oder verzinkte Stahlleitung oder Materialien nach Tabelle 1 DIN 14462 ausgeführt. Für die Verwendung von verzinktem Stahlrohr oder Kupferrohr ist die Zustimmung des zuständigen Wasserversorgungsunternehmens einzuholen (Sanitärinstallateur). Die Dimensionierung erfolgt nach DIN 1988-600 und DIN 14462 durch eine Druckverlustberechnung. In der Regel gilt „nass“ Anlagen“ mit „Vorlagebehälter und Pumpe“ mittelbarer Anschluss bis zu einem Rohrleitungsvolumen von ca. 1000 Liter in DN 50, bei Anschluss einer „nass-trocken“ Anlage bis zu einem Rohrnetzvolumen von ca. 800 Liter in DN 50, diese Annahmen sind rechnerisch nachzuweisen. Die Löschwasserleitungen „trocken” ist in verzinktem Stahlrohr oder in Materialien nach Tabelle 1 DIN 14462 auszuführen. Die Rohrleitung ist in DN 80 zu dimensionieren. Soll die Rohrleitung kleiner dimensioniert werden oder ist die Gesamtlänge größer 100 m sind rechnerische Nachweise erforderlich.
 

4. Wassermenge/Löschwasserbedarf/Gleichzeitigkeit von Wandhydranten

Nachdem aus dem Brandschutzkonzept der Typ der Wandhydranten und daraus resultierend gemäß der Tabelle 2 DIN 14462 die Wassermengen und die Gleichzeitigkeit festgelegt wurde, ist sicherzustellen, dass mindestens über 2 Std. das Löschwasser bereitgestellt werden muss (sofern das Brandschutzkonzept nicht andere Vorhaltezeiten vorgibt ). Bei der Annahme, dass Typ “F“ zum Einsatz kommt mit einer Gleichzeitigkeit von 3 Wandhydranten, bei einer normalen Entnahmemenge von 100 l/min und einem Mindestfließdruck pminf von 3 bar am Wandhydranten – Schlauchanschlussventil bzw. einem Höchstfließdruck pmaxf von 8 bar, muss über die 2 Std. ein Volumen von 36 m³ Löschwasser bereitgestellt werden. Nach W 405 und den „AGB Wasserwerke“ müssen die Wasserwerke diese Menge nicht zur Verfügung stellen, aber die Gemeinden sind verpflichtet das Löschwasser für den abwehrenden Brandschutz (Feuerwehr) bereitzustellen, dies kann jedoch auch aus unterirdischen Tanks DIN 14230, Löschteichen DIN 14210 oder Löschbrunnen DIN 14220 erfolgen. Grundsätzlich gilt für alle Anlagen dieser Art die Begrifflichkeit des „Objektschutzes“, d.h. hier muss der Bauherr für eine entsprechende Versorgung mit Objektschutzlöschwasser sorgen. Der „Grundschutz“ nach W 405 muss durch die Gemeinde sichergestellt werden, d. h. Löschwasser für die Feuerwehr „abwehrender Brandschutz“.
 

5. Versorgungsdruck/Druckverhältnisse/Druckberechnungen

Bei Wandhydranten Typ F muss der Fließdruck pminf vom Wasser-Einspeisepunkt weitest entfernten Schlauchanschlussventil bei einer Durchflussmenge von 100 l/min mindestens 0,3 MPa (3 bar) betragen, in Hochhäusern gemäß Brandschutzkonzept 200 l/min bei 0,45 MPa (4,5 bar). Der Fließdruck pmaxf darf am Schlauchanschlussventil max. 0,8 MPa betragen. Der max. Ruhedruck am Schlauchanschlussventil darf 1,2 MPa nicht überschreiten (0,1 MPa = 1 bar).

  • Überschlägige Druckermittlung vor Einspeisung in die
    Löschwasserleitung „nass” (Beispiel):

    – geodätische Höhe 10 m = 0,1 MPa
    – Fließdruck am Schlauchanschlussventil mind. 0,3 MPa
    – Druckverlust in Rohrleitung ca. 0,050 MPa
    – Wasserzähleranlage ca. 0,025 MPa
    – notwendiger Versorgungsdruck 0,475 MPa (4,75 bar)

    Dazuzurechnen ist gegebenenfalls der Druckverlust einer Füll- und Entleerungsstation bei einer
    Löschwasserleitung „nass/trocken” (Beispiel):

    – ca. 0,050 MPa Druckverlust für FuE
    – notwendiger Versorgungsdruck 0,525 MPa (5,25 bar)


Es ist mit den Wasserversorgungsunternehmen zu klären, ob der notwendige Versorgungsdruck bereitgestellt werden kann. Dieser richtet sich nach dem benötigten Volumenstrom, bei einer Gleichzeitigkeit von entweder 18 m³, 24 m³ oder 36 m³. Der für das jeweilige Bauvorhaben geforderte Volumenstrom kann dem Brandschutzkonzept entnommen werden. Kann der Wasserversorger den geforderten Versorgungsdruck nicht bereitstellen, so ist eine Druckerhöhungsanlage erforderlich.

Dies trifft zu, wenn die Druckdifferenz, die sich zusammensetzt aus dem Druckverlusten in den Rohrleitungen, dem Druckverlust aus dem geodätischen Höhenunterschied und dem Mindestfließdruck, größer ist als der Versorgungsdruck. Die Druckerhöhungsanlage ist vor der Installation bei dem örtlichen WVU anzumelden. Für die Versorgungssicherheit einer DEA ist die Anlage so auszulegen, dass die ständige Betriebssicherheit der Löschwasserversorgung sichergestellt ist, diese Angaben sind dem Brandschutzkonzept zu entnehmen, z. B. Doppelpumpe 100 % redundant mechanisch/hydraulisch und Ersatzstromversorgung 100 % (unterbrechungsfreie Stromversorgung und zweiter Schaltschrank).

Detaillierte Druckverlustberechnungen werden nach Angabe eines Streckenverlaufsplans oder Übermittlung einer Isometrie ihres Bauvorhabens auf Wunsch von unseren LWT-Spezialisten vorgenommen. Bei dieser Berechnung werden auch entsprechende Druckzonen vorgeschlagen (siehe auch DIN 1988-500). Um eine Zulaufdruckmessung (Kontrolle) unmittelbar hinter dem Wasserzähler durchführen zu können, sollte ein Druckanzeigegerät installiert sein.

Bei Trinkwasserinstallationen mit Wandhydranten Typ S (Selbsthilfe) sind die Auslegungen nach DIN 1988-300 vorzunehmen, der Verbrauch ist zum Trinkwasserbedarf zuzurechnen, d. h. im Regelfall 2 x 24 l/min bei 0,2 MPa oder 2 bar, max Fließdruck 0,8 MPa oder 8 bar. Notwendige Pumpen sind nach DIN EN 1988-500 zu berechnen.

Der Querschnitt der Hausanschlussleitung gibt schon eine Aussage über die maximal mögliche Wasserversorgung des (WVU), die Hausanschlussleitung wird nach dem Trinkwasserverbrauch ausgelegt, mit einer planerischen Fließgeschwindigkeit von 2 m/s, für die Nutzung im Feuerlöschfall darf diese Leitung mit max. 5 m/s belastet werden, d.h. bei einer Anschlussleitung DN 50 = di = 2 l/m X 2 m/s = 4 l/s, im Löschfall 2 l/m X 5 m/s = 10 l/s = 36 m³/h maximal mögliche Wasserbereitstellung.
 

6. Feuerwiderstandsklassen F 30/F 60/F 90

Beim Einbau von Wandhydrantenschränken in entsprechende Mauernischen in Brandwänden ist zu berücksichtigen, dass die Feuerwiderstandsklasse der Wand erhalten bleibt. Dies kann erfolgen durch Auskleiden der Nischenrückwand und der Nischenseitenwände mit feuerhemmenden Platten. Von einer Verkleidung der Schrankrückwand mit feuerhemmenden Platten raten wir ab.
 

7. Anschlussarten der Löschwasserleitungen

Löschwasserleitungen (-anlagen) „nass” für Wandhydranten Typ “F“ sind gemäß DIN 1988-600 und DIN 14462 Löschwasserleitungen, die mittelbar (indirekt) über freie Ausläufe an das Trinkwassernetz angebunden sind. Löschwasserleitungen (-anlagen) „nass-trocken“ für Wandhydranten Typ “F“ sind gemäß DIN 1988-600 und DIN 14462 Löschwasserleitungen, die unmittelbar (direkt) über eine Füll-und Entleerungsstation gemäß DIN 14463-1 an das Trinkwassernetz angebunden sind.

Bei „nass-trocken“ Anlagen ist zu berücksichtigen, dass keine Wassersäcke entstehen dürfen, diese müssen, wenn unumgänglich, automatisch entleert werden können (zusätzliche automatische Entleerungen). An den Stichleitungen sind entsprechende Rohrbelüfter und -entlüfter gemäß DIN 14463-3 zu installieren, damit beim Füllen keine Druckschläge entstehen. Die Anlage wird durch Betätigung des Schlauchanschlussventils, an denen Grenztaster befestigt sind, gefüllt. Die Anlage muss nach max. 60 Sek. gefüllt sein, eine entsprechende Berechnung kann durch unsere Spezialisten unter Angabe der Streckenführung durchgeführt werden.

Trinkwasserinstallationen mit Wandhydranten Typ “S“ sind im Trinkwassernetz eingeschliffen, daher sind sie im Regelfall Trinkwasserleitungen und müssen alle Anforderungen der DIN 1988 erfüllen. Insbesondere muss zum Schutz vor stagnierendem Wasser eine regelmäßige Wassererneuerung sichergestellt sein. Der DIN 1988-600 entsprechend, muss die regelmäßige Entnahmemenge so groß sein, dass das vorhandene Leitungsvolumen 3,0 mal pro Woche bei NW DN 50 mit einer Fließgeschwindigkeit von mindestens 0,2 m/s und bei NW über DN 50 eine Fließgeschwindigkeit von mindestens 0,1 m/s ausgetauscht wird (Verhinderung von Ablagerungen und Aufbau von Keimkolonien an den Rohrwänden).

Ist dies nicht gewährleistet, muss eine hygienische Trennung von Trinkwasserleitung und Löschwasserleitung vorgenommen werden. Hierzu kann die Wasserversorgung über Vorlagebehälter und Druckerhöhungsanlage oder als Löschwasserleitung „nass/trocken” mit Füll- und Entleerungsstation vorgenommen werden.
 

8. Vorlagebehälter

Vorlagebehälter dienen der hygienischen Trennung von Trink- und Löschwasser oder auch als Vorratsbehälter, wenn durch die Trinkwasserleitung zu geringe oder gar keine Wasserzufuhr erfolgt. Beim Anschluss eines offenen Vorlagebehälters an eine Trinkwasserleitung wird der Wasserzufluss durch Schwimmerventile gesteuert. Der Vorlagebehälter ist mit einem Überlauf ausgestattet, so dass bei Fehlfunktion der Schwimmerventile das nachfließende Wasser ablaufen kann. Dabei muss sichergestellt sein, dass sich die Oberkante des Überlaufs, dem dreifachen Zuleitungsquerschnitt entsprechend (z. B.: 195 mm bei Zulauf DN 65), unter der Unterkante des Trinkwasserzulaufes befindet (hygienische Trennung).

Das Nutzvolumen eines Vorlagebehälters wird nach DIN 1988-500 ausgelegt und wird nachfolgender Gleichung berechnet: Spitzendurchfluss, in m³/h x 0,03 = Nutzvolumen in m³. Das Volumen eines Vorlagebehälters in Verbindung mit einer Löschwasserleitung „nass/trocken” wird wie folgt berechnet: Volumen der Löschwasserleitung mal 1,3 ergibt = Volumen des Vorlagebehälters. Mittels Druckerhöhungsanlage wird das Wasser aus dem Vorlagebehälter in die Löschwasserleitung gefördert. Eine genaue Berechnung kann erst nach Vorlage einer Isometrie vorgenommen werden, aus der Querschnitte, Höhen und Längen ersichtlich sind. Die Vorlagebehälter als „freier Auslauf“ sind frostsicher zu installieren.
 

9. Druckerhöhungsanlagen

Nach DIN 14462 ist für Druckerhöhungsanlagen, die ausschließlich Feuerlöschzwecken dienen, nur eine einzelne Pumpe erforderlich, sofern im Brandschutzkonzept nichts anderes gefordert wird. Idealerweise verwendet man hierzu eine Hochdruck-Kreiselpumpe, damit ein konstanter Druck gewährleistet wird. Keinesfalls darf eine selbstansaugende Pumpe beim direkten Anschluss an Trinkwasserleitungen verwendet werden (Gefahr des Leerpumpens der Trinkwasserleitung und nachfolgend Leitungsbeschädigungen durch den entstehenden Unterdruck, der Druck im Trinkwassernetz darf 1,5 bar nicht unterschreiten).

Nach DIN 1988 und DIN 2000 sind Druckerhöhungsanlagen so auszulegen, auszuführen, zu betreiben und zu unterhalten, dass die ständige Betriebssicherheit der Wasserversorgung gegeben ist und weder die öffentliche Wasserversorgung noch andere Verbrauchsanlagen störend beeinflusst werden. Eine nachteilige Veränderung der Trinkwassergüte muss ausgeschlossen sein.

Druckerhöhungsanlagen können, sofern die Voraussetzungen nach DIN 1988 zur Trinkwasserhygiene (regelmäßiger Wasserdurchfluss oder automatische Spüleinrichtung) gegeben sind, direkt an das Trinkwassernetz angeschlossen werden.

Es ist zu prüfen, ob die Druckerhöhungsanlage für ein ganzes Gebäude erforderlich wird oder ob sie nur für einige Stockwerke in Frage kommt, die mit dem minimalen Wasserdruck der Versorgungsleitung nicht ständig versorgt werden können.

Der maximale Fließdruck am Schlauchanschlussventil darf 0,8 MPa und der maximale Ruhedruck am Schlauchanschlussventil darf 1,2 MPa nicht überschreiten. Landesbauordnungen können andere Drücke vorschreiben.

Auf der Vordruckseite der Pumpen dürfen bei unmittelbarem, direktem Anschluss nach DVGW wegen der Gefahr von stagnierendem Wasser keine Druckbehälter eingebaut werden. Sind diese Voraussetzungen nicht gegeben oder ist die Bereitstellungsmenge für Feuerlöschzwecke zu gering, so ist ein indirekter Anschluss mittels Vorlagebehälter vorzusehen.

Sind verschiedene Druckzonen einzurichten, sind folgende Ausführungsarten möglich:

  • durch mehrere Druckerhöhungsanlagen, so dass jeder Druckzone eine eigene Druckerhöhungsanlage zugeordnet wird;
  • durch eine Druckerhöhungsanlage mit einem zentralen Druckreduzierventil;
  • durch eine Druckerhöhungsanlage mit Drosselscheibe oder Druckminderer an den Wandhydranten der unteren Geschosse.
     
  • Hinweis: 
    Im Regelfall wird in Löschwasseranlagen kein Druckminderer benötigt. Nur wenn die zulässigen Fließdrücke von 0,8 MPa an den Wandhydranten überschritten werden ist eine Aufteilung in Druckzonen oder sind Armaturen zur Druckregelung erforderlich. Druckregelarmaturen sollten möglichst zentral angeordnet werden und die gewählte Armatur für den Druckregelbereich geeignet sein.


Die Druckerhöhungsanlage ist vor der Installation bei dem örtlichen WVU anzumelden.
 

10. Füll- und Entleerungsstationen für Löschwasserleitungen „nass/trocken”

Ist aufgrund entsprechender Vorschriften kein unmittelbarer, direkter Anschluss einer Löschwasserleitung an das Trinkwassernetz möglich und eine Versorgung durch einen Vorlagebehälter mit Druckerhöhungsanlage nicht gewünscht oder nicht möglich (Frostgefahr für die Löschwasserleitungen), so kann eine automatische Füll- und Entleerungsstation zum Einsatz kommen. Die Füll- und Entleerungsstation muss in einem frostgeschützten Raum untergebracht sein oder mit einer Zusatzheizung ausgestattet werden. Da nach einer Flutung der Leitungen eine restlose Entleerung erfolgen muss, sind Wassersäcke bei der Leitungsführung zu vermeiden. Ist dies nicht möglich, sind entweder automatisch-hydraulische Entleerungsventile oder Entleerungsgarnituren mit Netzteil einzubauen. Alle Leitungen sind mit mindestens 0,5 % Gefälle zur Füll- und Entleerungsstation zu verlegen. Leitungsführung und Entnahmestellen unterhalb des Niveaus der Füll- und Entleerungsstation sind nicht erwünscht.

Das gesamte Leitungswasser muss so entleert werden können, dass kein Schaden entsteht. Dazu muss ein freier Auslauf mit offenem Trichter zur Entwässerung geführt werden. Es muss ein Ablauf DN 100 oder größer vorgesehen werden.

Die Entlüftung des Rohrsystems muss so bemessen sein, dass an dem ungünstigsten gelegenen Schlauchanschlussventil spätestens 60 Sek. nach Betätigung Wasser zur Verfügung steht. Hierzu sind Rohrbe- und -entlüfter nach DIN 14 463-3 zu verwenden.
 

11. Rückflussverhinderer

Alle Löschwasserleitungen, die direkt an die Trinkwasserversorgung angeschlossen sind, müssen mit einem Rückflussverhinderer ausgerüstet sein (siehe auch DIN 1988-4, DIN 1988-8, DIN 14 463-1).
 

12. Wasserzähler

Bei direkt gespeisten Löschwasserleitungen sind Verbundzähler erforderlich. Die Wasserzähler müssen ausreichend dimensioniert sein, damit die erforderlichen Wassermengen (Gleichzeitigkeit beachten) zugeführt werden können.
 

13. Löschwasserleitungen „trocken”

Löschwasserleitungen „trocken” gemäß DIN 14 462 kommen immer dann zum Einbau, wenn die Wasserversorgung durch die Feuerwehr hergestellt wird. Die Löschwasserleitungen „trocken” ist in verzinktem Stahlrohr oder in Materialien nach Tabelle 1 DIN 14462 auszuführen.

Die Rohrleitung ist in DN 80 zu dimensionieren. Soll die Rohrleitung kleiner dimensioniert werden oder ist die Gesamtlänge größer 100 m sind rechnerische Nachweise erforderlich.

Es sind Rohrbelüfter und -entlüfter vorzusehen. Es müssen Entleerungsmöglichkeiten (siehe oben) vorgesehen werden, so dass die gesamte Leitung schadfrei entleert werden kann. Im Regelfall sind bei Gebäudehöhen ab 30 m über der Einspeiseeinrichtung Druckerhöhungsanlagen vorzuhalten. Dies ist in jedem Einzelfall mit der Feuerwehr abzustimmen. Die Einspeise- und Entnahmeeinrichtungen sind mit Verschlusseinrichtungen nach DIN 14 925 (Feuerwehr) auszuführen.
 

14. Montage von Wandhydranten

Die Montagehöhe für Wandhydrantenschränke ist so zu wählen, dass sich die Mitte des Schlauchanschlussventils 1400 mm ± 200 mm über der Oberkante Fertigfußboden befindet.

Kommt ein manueller Brandmelder in einem Wandhydrantenschrank zum Einbau, so ist die Mitte Melderfach der Bezugspunkt. Werden die Hydrantenschränke in die Wand eingebaut, ist zu berücksichtigen, ob die Wand eine Brandwand ist. Ist dies der Fall und entspricht der verbleibende Restwandteil z. B. nicht F 90, so ist die Einbaunische entsprechend größer auszuführen und allseitig vor Einbau mit einer zusätzlichen feuerhemmenden Schicht auszurüsten.

Der ungehinderte Zugang zu den Wandhydrantenschränken muss sichergestellt sein. Auf Putz montierte Wandhydrantenschränke werden auf die Fluchtwegbreite von mindestens 110 cm angerechnet, das heißt der Fluchtweg muss um die Schranktiefe breiter sein. 
 

15. Schaum-/Wasserhydranten

Schaum-/Wasserhydranten dürfen grundsätzlich nur an mittelbare Anlagen (Vorlagebehälter mit DEA) angeschlossen werden, damit bei eventuellem Rücksaugen kein Schaummittel in das Trinkwasser gelangen kann (DIN 1988-40/DIN EN 1717).
 

16. Hydranten/Hydrantenanlagen

Hydrantenanlagen sind Anlagen auf Grundstücken und/oder in Gebäuden, die aus Rohrleitungen mit daran angeschlossenen Überflur- oder Unterflurhydranten bestehen. Bei der Planung ist zu überlegen, welcher Hydrantentyp zum Einsatz kommen soll.
 

  • UNTERFLURHYDRANTEN

    haben den Vorteil, dass sie unterhalb der Umgebungsoberfläche montiert werden. Sie sind durch eine Straßenkappe abgedeckt.

    Zur Wasserentnahme sind ein Hydrantenstandrohr und ein Unterflurhydrantenschlüssel nötig. Die Unterflurhydranten sind im Straßenverkehr nicht störend und haben einen niedrigeren Anschaffungspreis als ein Überflurhydrant. Nachteile sind die schwere Auffindbarkeit bei Dunkelheit und Schnee, die Gefahr des Zuparkens, der erschwerte oder unmögliche Betrieb bei Überschwemmungen und der größere Pflege- und Wartungsaufwand als bei Überflurhydranten. 

    Bei der Planung von Unterflurhydranten ist auf die Hygienevorschriften für Trinkwasser gemäß DIN 1988 (kein stagnierendes Wasser in den Leitungen) zu achten. Ist kein ausreichender Wasseraustausch möglich, so müssen mittelbare, indirekte Anschlüsse gewählt werden, damit die Netztrennung vom Trinkwassernetz sichergestellt wird (z. B. Druckerhöhungsanlagen mit Vorlagebehältern und Zulauf über Schwimmerventilsteuerung).

    Unterflurhydranten mit Absperrvorrichtungen und Zubehöre müssen der DIN 3221 und der DIN 1988-600e entsprechen, damit einheitliche Bedienschlüssel, Standrohre und Schlauchanschlüsse verwendet werden können.

    Unterflurhydranten müssen mit in nächster Nähe angebrachten Hinweisschildern nach DIN 4066 gekennzeichnet werden.

    Formen:
    Form A     mit selbsttätiger Entleerung mit Druckwasserschutz (zur Verhinderung von Druckwasserverlust).
    Form AD   mit selbsttätiger Entleerung wie Form A, jedoch mit zusätzlicher Absperrung.
    Form B     ohne selbsttätige Entleerung (Entleerungsöffnung nicht gebohrt)
    Form BD  ohne selbsttätige Entleerung wie Form B, jedoch mit zusätzlicher Absperrung.

    Zusätze:
    Ziffer 1    Anschluss von unten; Montage direkt auf der Leitung
    Ziffer 2    Anschluss seitlich; Montage neben der Wasserleitung

    Größen:
    Nennweiten 80 und 100

    Zu beachten ist hierbei, dass bei Einbau von Unterflurhydranten in die öffentliche zentrale Wasserversorgung nur Hydranten der Nennweite 80 verwendet werden dürfen, da darauf auch die Feuerwehrstandrohre ausgelegt sind.

    Im privaten/industriellen Bereich können auch Hydranten der Nennweite 100 verwendet werden. Die entsprechenden Werkssicherheitskräfte müssen dann aber auch entsprechende Standrohre für DN 100 vorhalten (gegebenenfalls in unmittelbarer Nähe des Hydranten deponieren). Hierzu eignen sich besonders die Minimax-Schlauch- und Geräteschränke.

    Rohrdeckung:
    Die Rohrdeckung bezeichnet die Erdschicht, die sich über der Rohrleitung, an die der Hydrant angeschlossen werden soll, befindet. Gemessen wird von Oberkante Straßenbelag bis Oberkante Rohr. Sie beträgt in Deutschland 1250 mm.

    Straßenkappe:
    Die Straßenkappe ist stets so zu setzen, dass die Deckelvertiefung in ihrer Längsrichtung in Richtung der zu sperrenden Leitung liegt.

    Hydrantenbezeichnungen:
    Buchstaben-/Zahlenkombination, die gemäß DIN alle wesentlichen Merkmale des jeweiligen Hydranten beinhaltet: z. B. Unterflurhydrant mit selbsttätiger Entleerung mit Druckwasserschutz (A), doppelter Absperrung (D) für seitliche Montage (2), der Nennweite DN 80 und Rohrdeckung 1250 mm (1,25). R -> Hydrant DIN 3221 – AD 2 – 80 – 1,5

     
  • ÜBERFLURHYDRANTEN

    haben den Vorteil, dass sie leicht aufzufinden und ohne weitere Armaturen sofort einsatzbereit sind. Zur Wasserentnahme wird lediglich ein Hydrantenschlüssel benötigt. An einen Überflurhydranten können direkt mindestens zwei Schläuche gleichzeitig angekuppelt werden. Nachteile sind die Gefahr der Beschädigung durch äußere Einwirkungen, wie z. B. Verkehrsunfälle und der höhere Anschaffungspreis.

    Auch bei der Planung von Überflurhydranten ist auf die Hygienevorschriften für Trinkwasser gemäß DIN 1988 (kein stagnierendes Wasser in den Leitungen) zu achten. Ist kein ausreichender Wasseraustausch möglich, so müssen mittelbare, indirekte Anschlüsse gewählt werden, damit die Netztrennung vom Trinkwassernetz sichergestellt wird (z. B. Druckerhöhungsanlagen mit Vorlagebehältern und Zulauf über Schwimmerventilsteuerung). 

    Überflurhydranten mit Absperrvorrichtungen und Zubehör müssen der DIN 3222 und der DIN 1988-6 entsprechen, damit einheitliche Bedienschlüssel und Schlauchanschlüsse verwendet werden können.

    Überflurhydranten werden in zwei Ausführungen hergestellt:
     
    • Standardausführung, mit zwei nicht einzeln absperrbaren B-Wasseranschlüssen freiliegend. Die Bedienung erfolgt über einen Sechskantkopf oder einen Lochring in der Haubenspitze.
       
    • Fallmantelausführung, hierbei ist durch die Verwendung eines Fallmantels der Hydrant vor unbefugter Benutzung geschützt. Der Fallmantel wird mit einem Hydrantenschlüssel geöffnet und gibt dann zwei B-Wasseranschlüsse mit Niederschraubventilen frei. Wenn der Fallmantel geöffnet ist, kann der Haubendeckel entweder durch Hand oder mit einem Sechskantschlüssel bedient werden.

      Formen:
      Form A     mit zwei freiliegenden oberen Abgängen mit selbsttätiger Entleerung.
      Form B     mit zwei freiliegenden oberen Abgängen ohne selbsttätige Entleerung (Entleerungsöffnung nicht gebohrt).

      Zusätze:
      U     Hydrant zusätzlich mit Sollbruchstelle als Umfahrschutz. Kein Druckwasseraustritt, wenn Hydrant umgefahren wird.
      D     Hydrant mit zusätzlicher Absperrung.
      F      Fallmantel als Schutz vor unbefugter Benutzung mit zwei darunter liegenden oberen Abgängen und gegebenenfalls einem unteren freiliegenden Abgang (abhängig von der Nennweite). Die oberen Abgänge sind einzeln durch Niederschraubventile zu bedienen.

      Größen:
      Nennweiten 80/100/150
      Bei DN 80      2 obere C-Abgänge,
      bei DN 100     2 obere B-Abgänge, 1 unterer A-Abgang,
      bei DN 150     2 obere B-Abgänge, 1 unterer A-Abgang. 

      Rohrdeckung:
      Die Rohrdeckung bezeichnet die Erdschicht, die sich über der Rohrleitung, an die der Hydrant angeschlossen werden soll, befindet. Gemessen wird von Oberkante Straßenbelag bis Oberkante Rohr. Sie beträgt in Deutschland 1250 mm.

      Hydrantenbezeichnungen:
      Buchstaben-/Zahlenkombination, die gemäß DIN alle wesentlichen Merkmale des jeweiligen Hydranten beinhaltet: z. B. Überflurhydrant mit selbsttätiger Entleerung mit Druckwasserschutz (A) mit Fallmantel (F) und Umfahrschutz (U) sowie doppelter Absperrung (D) der Nennweite DN 100 für Rohrdeckung 1500 mm (1,5) -> Hydrant DIN 3222 – AFUD – 100 – 1,5
       
17. Löschwasser-Sauganschlüsse

Löschwasser-Sauganschlüsse dienen der Entnahme von Löschwasser aus unterirdischen Löschwasserbehältern, Brunnen, stehenden Gewässern, Löschwasserteichen.

Löschwasser-Sauganschlüsse nach DIN 14 244 dürfen nicht an das Trinkwassernetz angeschlossen werden. Durch den festen Einbau und die entsprechende Gestaltung des Bereiches um den Löschwasser-Sauganschluss herum ist die rasche und einfache Entnahme von Löschwasser im Bedarfsfall gesichert.

  • Einbauvorschriften:
     
    • Der Löschwasser-Sauganschluss ist so einzubauen, dass der Flansch 200 mm unter dem Gelände liegt und der Abstand von Mitte Festkupplung bis Erdboden 300 mm beträgt.
    • Um den Löschwasser-Sauganschluss ist eine Bodenfläche von etwa 1 m2 in geeigneter Weise zu befestigen.
    • Der Löschwasser-Sauganschluss ist gegebenenfalls gegen Anfahren durch eine nicht mit ihm in Verbindung stehende Schutzvorrichtung zu schützen.

18. Erforderliche Absprachen

Vor Einrichtung von Feuerlösch- und Brandschutzanlagen im Anschluss an Trinkwasser-Leitungsanlagen ist gemäß DIN 1988-600 die Zustimmung des zuständigen Wasserversorgungsunternehmens (WVU) einzuholen. Dazu sind dem WVU die zur Beurteilung der Anlage notwendigen Unterlagen (Zeichnungen, Berechnungen) vorzulegen. Darüber hinaus sind insbesondere die den Brandschutz betreffenden baurechtlichen Vorschriften und Auflagen zu beachten und mit der zuständigen Behörde abzustimmen.

Feuerlösch- und Brandschutzanlagen in Grundstücken und Gebäuden dienen dem Objektschutz im Sinne des DVGW-Arbeitsblattes W 405. Der Lieferumfang von Wasser für den Objektschutz ist für jeden Einzelfall mit dem zuständigen WVU zu vereinbaren.

Nach Fertigstellung ist die Betriebsbereitschaft der Anlage vom Bauherrn oder seinem Beauftragten den zuständigen Stellen (meist WVU oder Gewerbeaufsichtsamt) anzuzeigen. Vor Inbetriebnahme hat der Ersteller nachzuweisen, dass die Anschlussbedingungen erfüllt und im Kontrollbuch dokumentiert sind.


19. Montagehöhen
  • Mitte Schlauchanschlussventil 1400 ± 200 mm
  • Mitte manueller Brandmelder 1400 ± 200 mm
  • Mitte Schlauchanschlussarmatur 1200 ± 400 mm
  • B-Festkupplung der Einspeisearmatur 800 ± 200 mm
  • Griffhöhe Handfeuerlöscher 800 - 1200 mm über Fertigfußboden 

 

20. Literaturhinweise, Quellenangaben zur Löschwassertechnik

Lutz Rieck – Feuerlöscharmaturen; Rotes Heft 6, Verlag Kohlhammer; 70549 Stuttgart;
Lutz Rieck – Die Löschwasserversorgung Teil 1: Die Sammelwasserversorgung; Rotes Heft 27a; Verlag Kohlhammer; 70549 Stuttgart; DVGW, FNFW, DIN
 

21. Feuerlöscher, Brandklassen

A – Brände fester Stoffe, hauptsächlich organischer Natur, die normalerweise unter Glutbildung verbrennen; z. B. Holz, Papier, Stroh, Kohle, Textilien, Autoreifen.
B – Brände von flüssigen oder flüssig werdenden Stoffen; z. B. Benzin, Öle, Fette, Lacke, Harze, Wachse, Teer, Äther, Alkohole, Kunststoffe.
C – Brände von Gasen; z. B. Methan, Propan, Wasserstoff, Acetylen, Stadtgas.
D – Brände von Metallen; z. B. Aluminium, Magnesium, Lithium, Natrium, Kalium und deren Legierungen.
F – Brände von Speiseölen/fetten (pflanzliche und tierische Öle und Fette) in Frittier- und Fettbackgeräten und anderen Kücheneinrichtungen und -geräten.

(siehe auch > Welches Löschmittel für welche Brandklasse)
 

22. Regeln für die Ausrüstung von Arbeitsstätten mit Feuerlöschern (> ASR A 2.2)

Arbeitsstätten sind nach den Festlegungen der ASR A2.2 mit Feuerlöschern auszurüsten. Feuerlöscher müssen nach den Festlegungen der ASR A2.2 und im Übrigen den allgemein anerkannten Regeln der Technik entsprechend beschaffen sein, betrieben und instandgehalten werden. Abweichungen sind zulässig, wenn die gleiche Sicherheit auf andere Weise gewährleistet ist.

Die in dieser ASR A2.2 enthaltenen technischen Lösungen schließen andere, mindestens ebenso sichere Lösungen nicht aus, die auch in technischen Regeln anderer Mitgliedsstaaten der Europäischen Union oder anderer Vertragsstaaten des Abkommens über den Europäischen Wirtschaftsraum ihren Niederschlag gefunden haben können.

Prüfberichte von Prüflaboratorien, die in anderen Mitgliedsstaaten der Europäischen Union oder in anderen Vertragsstaaten des Abkommens über den Europäischen Wirtschaftsraum zugelassen sind, werden in gleicher Weise wie deutsche Prüfberichte berücksichtigt, wenn die den Prüfberichten dieser Stellen zu Grunde liegenden Prüfungen, Prüfverfahren und konstruktiven Anforderungen denen der deutschen Stelle gleichwertig sind. Um derartige Stellen handelt es sich vor allem dann, wenn diese die in der Normenreihe EN 45000 niedergelegten Anforderungen erfüllen.

Für die Einstufung eines Feuerlöschers ist DIN EN 3 „Tragbare Feuerlöscher“ zu beachten.

Nach DIN EN 3 ist nicht mehr die Löschmittelmenge, sondern das Löschvermögen für die Einstufung eines Feuerlöschers maßgeblich. Das > Löschvermögen wird als Leistungsklasse durch Zahlen-Buchstaben-Kombinationen angegeben, die auf den Feuerlöschern aufgedruckt sind. Die Zahl bezeichnet das Löschobjekt, der Buchstabe die Brandklasse. Je nach Leistung des Gerätes und des Löschmittels kann das gleiche Löschvermögen auch mit einer geringeren Löschmittelmenge erreicht werden, als der in DIN EN 3 angegebenen Maximalmenge.

Beispielsweise wird für die Zulassung eines ABC-Pulverlöschers mit 6 kg Füllmenge ein Löschvermögen von 21 A 113 B gefordert. Dieses Löschvermögen kann ein entsprechend ausgerüsteter 4 kg-Löscher ebenfalls erreichen. Unabhängig von der Füllmenge ist das Löschvermögen beider Geräte gleich.

Das Löschvermögen nach DIN EN 3 kann nicht addiert werden. Deshalb wird als Hilfsgröße die „Löschmitteleinheit LE“ eingeführt. Den Feuerlöschern wird eine bestimmte Anzahl von LE zugeordnet. Die vorstehend im Beispiel genannten Feuerlöscher von 4 kg bzw. 6 kg haben die gleichen Löschmitteleinheiten.

Löschmitteleinheiten (LE) und Feuerlöscherarten nach DIN EN 3 (siehe Abb.)

Werden Feuerlöscher für die Brandklassen A und B eingesetzt und haben sie für die Brandklassen unterschiedliche Löschmitteleinheiten (LE), ist der niedrigere Wert anzusetzen.

 

Weitere Informationen zu > Ratings- und Löschmitteleinheiten


Unser Dienstleistungsangebot

  1. Druckberechnungen für Löschwassersysteme

    Um die Anforderungen an die zu erbringenden Löschwassermengen und Wasserdruckverhältnisse entsprechend den einschlägigen Normen beim jeweils geplanten System zu erfüllen, sind im allgemeinen genaue und umfangreiche Druckberechnungen erforderlich.

    Zu berücksichtigende Kriterien hierbei sind unter anderem: 

    • Gleichzeitigkeit von Wandhydranten
    • Druckzonen
    • Ausführung als reine Löschwasserleitung oder als Trinkwasserleitung
    • Vermeidung von Druckstößen
    • Füllzeiten der Löschwasserleitung


    Die Minimax Mobile Services GmbH & Co. KG kann diese Druckberechnungen entsprechend den jeweils geltenden Normen und Vorschriften ausführen. Die Arbeiten werden durch unsere Fachingenieure gegen Honorar vorgenommen.
     

  2. Endabnahme und Inbetriebnahme von Druckerhöhungsanlagen/Füll- und Entleerungsstationen

    Druckerhöhungsanlagen und Füll- und Entleerungsstationen müssen nach kompletter Fertigstellung einer Endabnahme und Inbetriebnahme unterzogen werden. Hierbei sind sämtliche Anlagenteile einschließlich aller Grenztaster zu überprüfen. Im Anschluss wird ein Protokoll erstellt sowie ein Kontrollbuch mit den Anlagen-Stammblättern angelegt. Die Minimax Mobile Services führt diese Arbeiten entsprechend den jeweils geltenden Normen und Vorschriften aus.

     

  3. Endabnahme und Inbetriebnahme von Feuerlösch-Schlauchanschlusseinrichtungen

    Feuerlösch-Schlauchanschlusseinrichtungen gemäß DIN 14 462/ DIN EN 671 müssen nach ihrer Fertigstellung einer Abnahme unterzogen werden. Bei der Endabnahme und Inbetriebnahme der vollständig installierten und betriebsbereiten Anlage sind zu prüfen: 

    • Übereinstimmung mit den einschlägigen Normen
    • Übereinstimmung mit den Forderungen der Baubehörde und der örtlichen Brandschutzbehörde
    • Funktionsbereitschaft
    • Dichtigkeit aller Systemkomponenten


    Im Anschluss wird ein Protokoll erstellt sowie ein Kontrollbuch mit den Anlagen-Stammblättern angelegt. Die Minimax führt diese Arbeiten entsprechend den jeweils geltenden Normen und Vorschriften aus. Die Arbeiten werden durch unsere Sachkundigen für Feuerlösch-Schlauchanschlusseinrichtungen (DIN 14 461/ DIN EN 671) und Löschwasserleitungen (DIN 14 462) ausgeführt.
     

  4. Instandhaltungsarbeiten Löschwassertechnik

    Löschwasserleitungen und ihre Ausrüstungsteile unterliegen Wiederholungsprüfungen (DIN 1988-600, DIN 1988-8 und E DIN EN 671-3). Die Minimax führt sämtliche Instandhaltungsarbeiten entsprechend den jeweils geltenden Vorschriften aus.

    Die Arbeiten werden durch unsere Sachkundigen für Feuerlösch-Schlauchanschlusseinrichtungen (DIN 14 461/DIN EN 671) und Löschwasserleitungen (DIN 14 462) ausgeführt. (Mehr zu Löschwassertechnik-Wartung von Minimax ...)

    Die entsprechenden Prüffristen finden Sie nachstehend aufgelistet. Diese gelten nur, wenn in den nutzungsspezifischen Vorschriften nichts anderes festgelegt ist; sie können je nach Bundesland unterschiedlich sein.

    PRÜFFRISTEN:

    Monatlich 

    Sichtkontrollen durch Prüfbeauftragte (z. B. Haustechniker) bei Druckerhöhungsanlagen und Füll- und Entleerungsstationen (Löschwasserleitungen „nass/trocken”)

    Jährlich - Löschwasserleitungen „nass” und „nass/trocken”

    – Absperreinrichtungen
    – Entleerungseinrichtungen
    – Druckerhöhungsanlagen
    – Rohrbelüfter und Rohrentlüfter
    – Feuerlösch-Schlauchanschlusseinrichtungen
    – formstabile Schläuche (Sichtprüfung und Druckprüfung)
    – Flachschläuche (Sichtprüfung)
    – Füll- und Entleerungsstationen einschließlich Steuerelementen
    – Druckminderer
    – Vorlagebehälter
    – Überflur- und Unterflurhydranten

    2-jährig
    Löschwasserleitungen „trocken”

    5-jährig
    Sichtprüfung und Druckprüfung Flachschläuche


Wir sind in ganz Deutschland für Sie da

Ihre persönliche Betreuung und Zufriedenheit liegt uns am Herzen. Kompetente Sachkundige stehen Ihnen zu allen Fragen rund um das Thema Löschwassertechnik zur Verfügung: (siehe Abb.)
 

 


Löschwassersysteme von Minimax

Einbau- und Installationsanleitungen

Einbau- und Installationsanleitung für Feuerlösch-Schlauchanschlusseinrichtungen
(Wandhydranten für Flachschlauch) nach DIN 14 461-6/DIN EN 671-2

  1. Vor Montagebeginn alle losen Teile aus dem Innenraum des Schrankes entfernen.
     
  2. Bei Einbauschränken muss die Nischengröße 20 mm größer sein als die Kastenmaße des Schrankes. Hierbei muss die statisch erforderliche beziehungsweise brandschutztechnisch vorgeschriebene Wanddicke erhalten bleiben, siehe Bauordnung und DIN 4102.
     
  3. Um eine einwandfreie Funktion des Wandhydranten zu erreichen, ist es gerade beim Einbau unumgänglich, Sorgfalt walten zu lassen. Die angeschweißten Maueranker werden um ca. 60° gebogen. Der Schrank muss genau senkrecht und rechtwinklig in die Nische eingebaut werden. Das Türblatt muss immer bündig im Rahmen liegen und der umlaufende Luftspalt muss vom Türblatt zum Rahmen gleichmäßig sein. Gilt sinngemäß bei Wandschränken.
     
  4. Die Löschwasserleitung darf auf keinen Fall durch den Innenraum des Wandhydranten verlegt werden.
     
  5. Das Schlauchanschlussventil muss nach DIN 14 461 1400 mm ± 200 mm über dem Fertigfußboden installiert sein. Bei Kombinations-Schränken sind außerdem die Einbauhöhen der Erweiterungen (z. B. Brandmelder 1400 mm ± 200 mm) zu beachten. Zur leichten Montage und Demontage des Schlauchanschlussventils ist eine Verschraubung zu verwenden. Diese Verschraubung ist zwischen Löschwasserleitung und Schlauchanschlussventil einzuschrauben. Bei Feuerlösch-Schlauchanschlusseinrichtungen (Wandhydranten) ist die Verschraubung innerhalb des Wandhydranten so zu plazieren, dass sie auch beim Einsatz von Werkzeugen ungehindert zugänglich ist. Das Schlauchanschlussventil und die Schlauchhaspelaufhängung sind auf einer Seite anzuordnen.
     
  6. Nach der Installation ist der Schrank grundsätzlich zu lackieren. Nach dem Lackieren ist der Schrank mit folgenden Schildern zu versehen: Auf dem Türblatt außen mit dem Brandschutzzeichen nach VBG 125 (GUV 0.7), auf dem Türblatt innen mit der Bedienungsanleitung. Bei Kombinationsmodellen sind zusätzliche Brandschutzzeichen erforderlich.
     
  7. Die Ausrüstung ist wie folgt vorzunehmen: Die Schlauchhaspel wird in die dafür vorgesehene Halterung eingehängt. Den Schlauch auf die ganze Länge ausrollen, dann auf die Hälfte zusammenfalten, so dass die beiden Kupplungen aufeinander liegen. Das geknickte Ende des zusammengelegten Schlauchs in die Schlauchhaspelnabe einstecken und durch Drehen der Schlauchhaspel den Schlauch aufwickeln. Die jetzt unten liegende Kupplung an die des Schlauchanschlussventils anschließen und die obere Kupplung mit dem Strahlrohr verbinden. Strahlrohr in Strahlrohrhalter einhängen. Das Schlauchanschlussventil ist auf Dichtigkeit zu prüfen.
     
  8. Wandhydranten sind nur dann normgerecht, wenn sie unter Beachtung der Einbau- und Installationsanleitung montiert werden.
     
  9. Nichteinhaltung der Einbau- und Installationsanleitung schließt Haftungsansprüche gegen den Hersteller/Lieferanten aus.
     
  10. Nach Fertigstellung der Löschwasserleitung Abnahmeprüfung durch Minimax ausführen lassen. 

 

Anleitung zum fachgerechten Aufwickeln des Flachschlauchs bei Feuerlösch-Schlauchanschlusseinrichtungen
DIN 14 461-6/DIN EN 671-2, für Flachschlauch C 42
  1. Schlauch auf ganze Länge auslegen.
  2. Schlauch auf die Hälfte zusammenfalten, so dass die beiden Kupplungen aufeinander liegen.
  3. Das geknickte Ende des zusammengelegten Schlauchs in die Schlauchhaspel einstecken und durch Drehen der Schlauchhaspel den Schlauch aufwickeln.
  4. Haspel einschwenken.
  5. Die jetzt unten liegende Kupplung unter der Haspel durch an das Schlauchanschlussventil anschließen.
  6. Die obere Kupplung mit dem Strahlrohr verbinden.
  7. Strahlrohr/Hohlstrahlrohr im Halter einhängen.
  8. Das Schlauchanschlussventil ist auf Dichtigkeit zu prüfen.

(siehe Abb.)


Einbau- und Installationsanleitung für Feuerlösch-Schlauchanschlusseinrichtungen
(Wandhydranten für formstabilen Schlauch) nach DIN 14 461-1/DIN EN 671-1
 
  1. Vor Montagebeginn alle losen Teile aus dem Innenraum des Schrankes entfernen.
     
  2. Bei Einbauschränken muss die Nischengröße 20 mm größer sein als die Kastenmaße des Schrankes. Hierbei muss die statisch erforderliche beziehungsweise brandschutztechnisch vorgeschriebene Wanddicke erhalten bleiben, siehe Bauordnung und DIN 4102.
     
  3. Um eine einwandfreie Funktion des Wandhydranten zu erreichen, ist es gerade beim Einbau unumgänglich, Sorgfalt walten zu lassen. Die angeschweißten Maueranker werden um ca. 60° gebogen. Der Schrank muss genau senkrecht und rechtwinklig in die Nische eingebaut werden. Das Türblatt muss immer bündig im Rahmen liegen und der umlaufende Luftspalt muss vom Türblatt zum Rahmen gleichmäßig sein. Gilt sinngemäß bei Wandschränken.
     
  4. Die Löschwasserleitung darf auf keinen Fall durch den Innenraum des Wandhydranten verlegt werden.
     
  5. Das Schlauchanschlussventil muss nach DIN 14 461 1400 mm ± 200 mm über dem Fertigfußboden installiert sein. Bei Kombinations-Schränken sind außerdem die Einbauhöhen der Erweiterungen (z. B. Brandmelder 1400 mm ± 200 mm) zu beachten. Zur leichten Montage und Demontage des Schlauchanschlussventils ist eine Verschraubung zu verwenden. Diese Verschraubung ist zwischen Löschwasserleitung und Schlauchanschlussventil einzuschrauben. Bei Feuerlösch-Schlauchanschlusseinrichtungen (Wandhydranten) ist die Verschraubung innerhalb des Wandhydranten so zu platzieren, dass sie auch beim Einsatz von Werkzeugen ungehindert zugänglich ist. Das Schlauchanschlussventil und die Schlauchhaspelaufhängung sind auf einer Seite anzuordnen.
     
  6. Nach der Installation ist der Schrank grundsätzlich zu lackieren. Nach dem Lackieren ist der Schrank mit folgenden Schildern zu versehen: Auf dem Türblatt außen mit dem Brandschutzzeichen nach VBG 125 (GUV 0.7), auf dem Türblatt innen mit der Bedienungsanleitung. Bei Kombinationsmodellen sind zusätzliche Brandschutzzeichen erforderlich. 
     
  7. Die Ausrüstung ist wie folgt vorzunehmen: Die Schlauchhaspel wird in die dafür vorgesehene Halterung eingehängt. Die am Ende des Verbindungsschlauchs befindliche abgewinkelte Kupplung wird an die des Schlauchanschlussventils angekuppelt. Schlauchschellen müssen auf sicheren Sitz überprüft werden. Das eine Ende des Schlauchs auf das abgewinkelte Anschlussstück in der Schlauchhaspel schieben und mit einer der Schlauchschellen sicher befestigen. Durch Drehen der Schlauchhaspel den Schlauch vollständig aufwickeln. Das freie Ende des Schlauchs mittels einer Schlauchschelle mit dem Strahlrohr sicher verbinden. Das Schlauchanschlussventil ist auf Dichtigkeit zu prüfen.
     
  8. Wandhydranten sind nur dann normgerecht, wenn sie unter Beachtung der Einbau- und Installationsanleitung montiert werden.
     
  9. Nichteinhaltung der Einbau- und Installationsanleitung schließt Haftungsansprüche gegen den Hersteller/Lieferanten aus.
     
  10. Nach Fertigstellung der Löschwasserleitung Abnahmeprüfung durch Minimax ausführen lassen.

(siehe Abb.)


Einbau- und Installationsanleitung für Einspeiseeinrichtungen nach DIN 14 461-2 und DIN 14 461-4 sowie für Entnahmeeinrichtungen nach DIN 14 461-2 und DIN 14 461-5 für Löschwasserleitungen „trocken”

 

  1. Vor Montagebeginn alle losen Teile aus dem Innenraum des Schrankes entfernen.
     
  2. Bei Einbauschränken muss die Nischengröße 20 mm größer sein als die Kastenmaße des Schrankes. Hierbei muss die statisch erforderliche beziehungsweise brandschutztechnisch vorgeschriebene Wanddicke erhalten bleiben, siehe Bauordnung und DIN 4102.
     
  3. Um eine einwandfreie Funktion der Einspeise- und Entnahmeeinrichtung zu erreichen, ist es gerade beim Einbau unumgänglich, Sorgfalt walten zu lassen. Die angeschweißten Maueranker werden um ca. 60° gebogen. Der Schrank muss genau senkrecht und rechtwinklig in die Nische eingebaut werden. Das Türblatt muss immer bündig im Rahmen liegen und der umlaufende Luftspalt muss vom Türblatt zum Rahmen gleichmäßig sein. 

    Gilt sinngemäß bei Wandschränken.
     
    • Einspeiseeinrichtung
       
      • Die B-Festkupplungen der Einspeisearmatur müssen sich 800 mm ± 200 mm über der Geländeoberfläche befinden.
         
      • Die Einspeiseeinrichtung ist nach dem Lackieren mit folgenden Schildern zu versehen: Auf dem Türblatt außen mit „Löschwassereinspeisung” und auf dem Türblatt innen mit „Vor Gebrauch Entleerungsventil schließen, nach Gebrauch Entleerungsventil öffnen”.
         
      • Wenn die Einspeisearmatur nicht der tiefste Punkt für die Entleerung der Löschwasserleitung ist, muss zusätzlich ein Hinweisschild an der Innenseite der Tür angebracht sein, wo sich die Entleerungsstelle befindet.
         
      • In der Einspeiseeinrichtung muss ein Kupplungsschlüssel BC vorhanden sein.

         
    • Entnahmeeinrichtung
       
      • Die Entnahmeeinrichtung muss so installiert sein, dass sich die Schlauchanschlussarmatur 1200 mm ± 400 mm über dem Fertigfußboden befindet.
         
      • Bei Kombinationsmodellen sind außerdem die Einbauhöhen der Erweiterungen (z. B. manueller Brandmelder 1400 mm ± 200 mm) zu beachten.
         
      • Die Schlauchanschlussarmatur ist so zu installieren, dass die Verschlusseinrichtung für die Feuerwehr nach vorne zeigt, das Kuppeln mit dem Kupplungsschlüssel BC und das knickfreie Anschließen eines Flachschlauchs C sichergestellt sind.
         
      • Die Entnahmeeinrichtung ist nach dem Lackieren mit dem Schild „Steigleitung trocken für Feuerwehr” außen auf der Tür zu versehen. Bei Kombinationsmodellen sind zusätzliche Brandschutzzeichen nach VBG 125 (GUV 0.7) erforderlich.
         

4. Wandhydranten sind nur dann normgerecht, wenn sie unter Beachtung der Einbau- und Installationsanleitung montiert werden. 

5. Nichteinhaltung der Einbau- und Installationsanleitung schließt Haftungsansprüche gegen den Hersteller/Lieferanten aus. 

6. Nach Fertigstellung der Löschwasserleitung Abnahmeprüfung durch Minimax ausführen lassen.


Löschwassersysteme

DEA  Druckerhöhungsanlage
EIN Einspeiseeinrichtung
ENL Entleerungseinrichtung
ENT Entnahmeeinrichtung
FuE Füll- und Entleerungsstation
GT Grenztaster
RB Rohrbelüfter
RBE Rohrbelüfter und Rohrentlüfter
SAE Feuerlösch-Schlauchanschlusseinrichtung
SPL Spüleinrichtung
TW Trinkwasserversorgung
VA Verbraucheranschluss
VB Vorlagebehälter
WVU    Wasserversorgungsunternehmen

  • Löschwasserleitungen mit Trinkwasser
  • Löschwasserleitungen mit Nichttrinkwasser
  • Löschwasserleitungen „trocken”


(siehe Abbildungen)


Löschwassersystem 1:

Löschwasserleitung „nass/trocken” mit direktem Anschluss an das Trinkwassernetz, mit hygienischer Trennung durch eine Füll- und Entleerungsstation für Wandhydranten Typ “F“ (3 x 100 l/min bei 3 bar oder 3 x 200 l/min bei 4,5 bar, in Sonderfällen wird dieses System auch für Wandhydranten Typ “S“ eingesetzt): (siehe Abb. 1)

Diese Anlage wird dort eingesetzt, wo der Wasserdruck des Versorgungsunternehmens ausreicht, um unter Berücksichtigung der Druckverluste am letzten Schlauchanschlussventil noch 0,3 MPa Druck zu haben. Durch den Einsatz der Füll- und Entleerungsstation wird erreicht, dass kein stagnierendes Wasser das Trinkwasser gefährdet, weil die Löschwasserseite trocken ist und erst im Bedarfsfall aus der Trinkwasserleitung gefüllt wird. Die Füllzeit darf 60 Sekunden nicht überschreiten. Dadurch, dass die Löschwasserseite im betriebslosen Zustand trocken ist, eignen sich diese Anlagen besonders für frostgefährdete Bereiche und solche Bereiche, wo kleinste Mengen Wasser im Normalfall Probleme bereiten würden (Hygienebereiche, Intensivstationen, Abfüllanlagen für Arzneien).

 

Löschwassersystem 2 (Ausnahmefall):

Löschwasserleitung „nass/trocken” mit direktem Anschluss an das Trinkwassernetz und einer Druckerhöhungsanlage, mit hygienischer Trennung durch eine Füll- und Entleerungsstation für Wandhydranten Typ “F“ (3 x 100 l/min bei 3 bar oder 3 x 200 l/min bei 4,5 bar, in Sonderfällen wird dieses System auch für Wandhydranten Typ “S“ eingesetzt): (siehe Abb. 1)

Diese Anlage wird dort eingesetzt, wo der Wasserdruck des Versorgungsunternehmens nicht ausreicht, um unter Berücksichtigung der Druckverluste am letzten Schlauchanschlussventil noch 0,3 MPa Druck zu haben. Der Eingangsdruck wird um die erforderliche Druckdifferenz in direktem Anschluss erhöht. Die Absicherung des Trinkwassers gegenüber stagnierendem Wasser erfolgt durch die Füll- und Ent leerungsstation. Die Füllzeit darf 60 Sekunden nicht überschreiten. Dadurch, dass die Löschwasserseite im betriebslosen Zustand trocken ist, eignen sich diese Anlagen besonders für frostgefährdete Bereiche.

Der Aufbau der gesamten Löschwasserleitung bei den oben gezeigten Systemen bedingt einen mindestens 3-fachen Trinkwasservolumenwechsel pro Woche im Rohrnetz. Wenn diese Voraussetzung nicht gegeben ist, so ist ein indirekter Anschluss vorzusehen, wie in den folgenden Systemen gezeigt.

 

Löschwassersystem 3:

Löschwasserleitung „nass“ mit indirektem Anschluss an das Trinkwassernetz über einen offenen Vorlagebehälter (hygienische Trennung) und einer Druckerhöhungsanlage für Typ “F“ und Typ “S“: (siehe Abb. 2)


Diese Anlage wird dort eingesetzt, wo eine notwendige Spülung der Anlage nicht gewährleistet werden kann und sowohl der Vordruck als auch die Wassermenge des Trinkwasserversorgungsnetzes nicht ausreichend sind. Das Trinkwasser wird durch den offenen Vorlagebehälter vor Verkeimung geschützt. Eine Grenztaster-Steuerung für den Anlauf der Pumpe kann auch durch eine Druckdifferenzschaltung ersetzt werden. Bei diesem Anlagentyp ist eine Einspeisung durch die Feuerwehr möglich, dadurch wird eine Sicherheit der Wasserversorgung geschaffen, damit erübrigt sich normalerweise die Maßnahme zusätzlich Redundanz zu fordern, wie Doppelpumpenanlagen oder Notstromversorgung.

 

Löschwassersystem 4:

Löschwasserleitung „nass/trocken” mit indirektem Anschluss an das Trinkwassernetz über einen offenen Vorlagebehälter (hygienische Trennung) und einer Druckerhöhungsanlage mit nachfolgender Füll- und Entleerungsstation zur Absicherung einer Frostgefahr oder besonderer Anforderungen: (siehe Abb. 2)

Diese Anlage wird dort eingesetzt, wo eine notwendige Spülung der Anlage nicht gewährleistet werden kann und sowohl der Vordruck als auch die Wassermenge des Trinkwasserversorgungsnetzes nicht ausreichend sind. Das Trinkwasser wird durch den offenen Vorlagebehälter vor Verkeimung geschützt. Dadurch, dass die Löschwasserseite im betriebslosen Zustand trocken ist, ist der Einsatz in frostgefährdeten Räumen möglich, wobei die Pumpe, der Vorlagebehälter und die Füll- und Entleerungsstation jedoch in einem frostsicheren Bereich untergebracht sein müssen (dieser Anlagentyp ist universall einsetzbar, weil er nach Klasse 5 abgesichert ist und das Wasser für Keimtransporte im Leitungsnetz nicht zur Verfügung steht, ein Verkeimungsrisiko tritt erst im Löschfall auf, dann ist der Löschvorgang Schwerpunkt aller Betrachtungen).

Bei diesem Anlagentyp ist eine Einspeisung durch die Feuerwehr möglich, dadurch wird eine Sicherheit der Wasserversorgung geschaffen, damit erübrigt sich normalerweise die Maßnahme zusätzlich Redundanz zu fordern, wie Doppelpumpenanlagen oder Notstromversorgung.

 

Löschwassersystem 5:

Trinkwasserinstallation mit Wandhydranten Typ “S“ ( 24 l/min bei 2 bar ). Diese Anlage wird dort eingesetzt, wo das Brandschutzkonzept Wandhydranten Typ “S“ fordert und der Wasserdruck des Versorgungsunternehmens ausreicht, um unter Berücksichtigung der Druckverluste am letzten Schlauchanschlussventil noch 0,2 MPa Druck zu haben. (siehe Abb. 3)

 

Löschwassersystem 6:

Trinkwasserinstallation mit Wandhydranten Typ “S“ ( 2 x 24 l/min bei 2 bar ) und einer Druckerhöhungsanlage: (siehe Abb. 3)

Diese Anlage wird dort eingesetzt, wo das Brandschutzkonzept Wandhydranten Typ “S“ fordert und der Wasserdruck des Versorgungsunternehmens nicht ausreicht, um unter Berücksichtigung der Druckverluste am letzten Schlauchanschlussventil noch 0,2 MPa Druck zu haben. Die einstufige Pumpe darf nur im Löschfall anlaufen, daher ist eine Grenztaster-Ansteuerung vom Schlauchanschlussventil her erforderlich. Die Pumpe läuft bis zur Beendigung des Löscheinsatzes. (siehe Abb. 3)

 

  • Hinweis:
    Die vorstehend beschriebenen Löschwassersysteme 1– 6 sind alle an eine Trinkwasserversorgung angeschlossen. Es ist ebenso möglich, diese Löschwassersysteme an eine Nichttrinkwasserversorgung (Brauchwasser) anzuschließen. Alle Anlagenteile müssen dann nur sinngemäß der DIN 1988 entsprechen. Bei Bestands-Löschwassersystemen mit einer erforderlich werdenden Nachrüstung einer hygienischen Trennung, können bei Platzproblemen, in Ausnahmefällen unter Rücksprache mit der Feuerwehr und den Wasserwerken auch ingenieurmäßige Lösungen zum Einbau kommen.

     

Löschwassersystem 7:

Löschwasserleitung „trocken” mit indirektem Anschluss an das Trinkwasser- oder Nichttrinkwassernetz und einer Druckerhöhungsanlage: (siehe Abb. 4)

Diese Anlage wird dort eingesetzt, wo die Feuerwehr eine nur für sie bestimmte festinstallierte Löschwasserleitung benötigt. Diese Anlage dient nicht zur Selbsthilfe, sondern ermöglicht der Feuerwehr die Einspeisung und Entnahme von Löschwasser. Liegen Entnahmestellen mehr als 30 m über der Stellfläche für die einspeisende Feuerwehr, so ist eine Druckerhöhungsanlage erforderlich, sofern es im Baurecht nicht anders geregelt ist. (siehe Abb. 4)

 

Hinweise

Bei allen Systemen ist jeweils an der tiefst gelegenen Stelle des Löschwasserleitungsnetzes eine Entleerungsmöglichkeit vorzusehen. Ebenso ist bei einer Löschwasserleitung „nass/trocken” immer dann eine zusätzliche Entleerungsmöglichkeit vorzusehen, wenn sich aufgrund der Rohrleitungsführung Wassersäcke beziehungsweise Rohrleitungsstücke mit einem Niveau unterhalb der Entleerungseinrichtung der Füll- und Entleerungsstation nicht vermeiden lassen.

Zur Überwachung auf unbefugtes Öffnen der Feuerlösch-Schlauchanschlusseinrichtung kann bei allen Systemen der Grenztaster GT oder der Türöffnungskontakt TK verwendet werden.

Die Ausschreibungstexte für die Feuerlösch-Schlauchanschlusseinrichtungen (Wandhydranten) entnehmen Sie bitte Kapitel 12 und 13.

Die Ausschreibungstexte der jeweils kompletten Systeme mit dem möglichen Zubehör finden Sie unten auf dieser Landingpage. Hier sind auch alle zum jeweiligen System möglichen Alternativpositionen aufgeführt. Bei Verwendung unserer Ausschreibungstexte bitten wir, die nicht gewünschten Komponenten im Ausdruck zu streichen oder anhand des Ausdruckes Ihre spezielle Ausschreibung zu erstellen. Ausschreibungstexte der einzelnen Komponenten von Löschwasserleitungen finden Sie ebenfalls unten auf dieser Landingpage.

Zur Sicherstellung des nach DVGW notwendigen Volumenwasseraustausches in trinkwasserführenden Leitungen kann zur Nachrüstung bei Altanlagen eine ingenieurmäßige Lösung gewählt werden z. B. eine Direktanschlussstation.

Eine automatische Spüleinrichtung muss auch in längeren Stichleitungen zu Druckerhöhungsanlagen und/oder Füll- und Entleerungsstationen nach dem letzten Verbraucher zur Einhaltung des notwendigen Volumenwassertausches eingesetzt werden.

 


Schutzatmosphären-Trennstation maximat T 50

Schutzatmosphären-Trennstation - Die Innovation im Bereich der Systemtrennung

Die Trennung von Lösch- und Trinkwasser stellt Anlagenbetreiber und Wasserversorger oft vor Herausforderungen. In vielen bestehenden Objekten existiert schlichtweg nicht der Platz, eine sichere Trennung von Trinkwasser und Löschwasser mit den bisher auf dem Markt vorhandenen Systemen umzusetzen. Eine Weltneuheit beseitigt das Problem und bietet weitere Vorteile zu geringeren Kosten: Eine Schutzatmosphären-Trennstation.

Nähere Informationen zur Schutzatmosphären-Trennstation maximat T50 ...


Ausschreibungstexte

Schilder

Aluminium-Schilder
0,5 bis 1,0 mm starkes Aluminium geprägt und bedruckt, witterungsbeständig.

Kunststoff-Schilder
Aus Hart-PVC, witterungsbeständig und mit lichtechten Siebdruckfarben bedruckt.

PVC-Folienschilder
Selbstklebend, witterungsbeständig und mit lichtechten Siebdruckfarben bedruckt.

Nachleuchtende Ausführung
Wird angeregt durch Kunst- oder Tageslicht. Danach können die an die Dunkelheit angepassten Augen die Leuchtkraft bis zu 10 Stunden wahrnehmen. Ungiftig, nicht radioaktiv, bleifrei, schwer entflammbar. Langnachleuchtende Pigmente und Produkte nach ISO 3864-4)



Bitte beachten Sie unsere Datenschutzerklärung.


captcha
Bitte trage Sie den angezeigten Sicherheitscode in das Eingabefeld ein.

Druckzonenregelung bei Wandhydranten in hohen Gebäuden

Geringer Montageaufwand zu Lasten der Sicherheit? Wichtig: Eine steuerungs­tech­nische Begren­zung zur Druck­zonen­regelung ist nicht aus­reichend, da die Betriebs­sicher­heit auch in einem even­tuellen Stör­fall er­halten bleiben muss (gem. DIN 14462)!

Mehr Infos zur Druckzonenregelung ...

Podcast

zur Planung von Lösch­wasser­anlagen nach DIN 14462

Jetzt reinhören ...!

Das Brandschutzkonzept als Grundlage Löschwasseranlage "nass" Löschwasseranlage "nass/trocken" und "trocken"